SCHEMA ELECTRIQUE - CONDUITE ELECTRIQUE - Fiat 500 1.4 16v
COMPOSANTS - CONDUITE ELECTRIQUE - Fiat 500 1.4 16v
| Code composant | Designation | Reference a l''operation |
| A001 | BATTERIE | |
| B001 | CENTRALE DE DERIVATION | |
| C015 | MASSE TABLEAU DE BORD COTE CONDUCTEUR | - |
| E050 | COMBINE DE BORD | |
| H001 | CONTACTEUR A 'CLE | |
| H090 | BLOC DE COMMANDES DES INTERRUPTEURS | |
| M001 | ORDINATEUR DE BORD | |
| M086 | CENTRALE DIRECTION ASSISTEE ELECTRIQUE |
DESCRIPTION - CONDUITE ELECTRIQUE - Fiat 500 1.4 16v
La direction assistee electrique EPS (Electrical Power Steering) est un dispositif d''asservissement de la direction qui reduit l''effort que l''on applique pour le braquage, grace au couple fourni par un moteur electrique.Une centrale electronique gere et controle le systeme : En traitant les informations en entree et en se basant sur une logique de fonctionnement interne, la centrale determine le sens de rotation et le courant d''alimentation du moteur electrique afin d''obtenir le degre de servoassistance souhaite.Avec le bouton CITY, situe au-dessus du groupe de commandes Chauffage/Climatisation sur la planche de bord, on peut modifier le niveau de servoasssistance du dispositif de direction electrique.Le combine de bord presente un temoin d''"anomalie de direction assistee electrique". L''activation de la fonction CITY est signalee par un temoin special, toujours au combine de bord.Pour plus de precisions,Les lignes d''alimentation de puissance et sous cle de la centrale de direction electrique sont protegees par deux fusibles situes dans la centrale de derivation du compartiment moteur.
DESCRIPTION FONCTIONNELLE - CONDUITE ELECTRIQUE - Fiat 500 1.4 16v
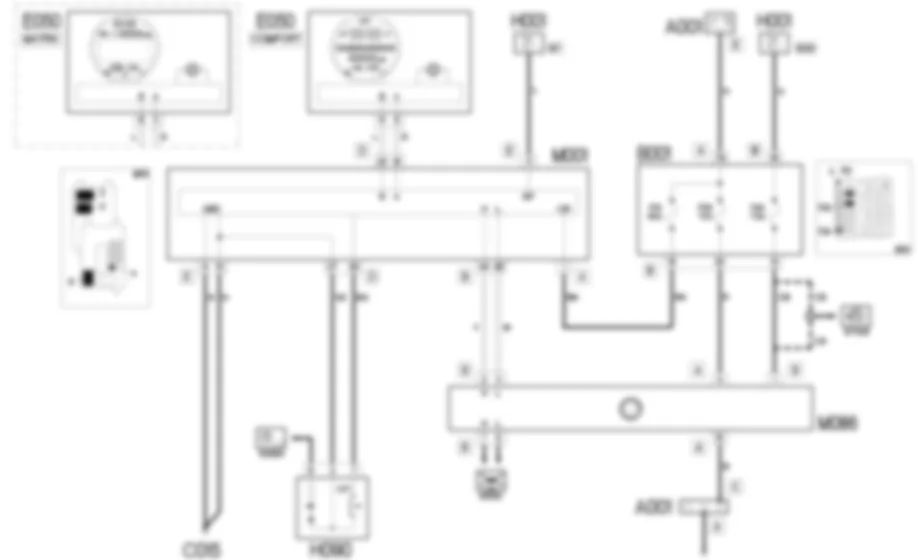
La centrale de controle de la direction electrique M086 controle et regle tout le systeme de direction electrique.L’alimentation directe de la batterie de la centrale M086 (broche A du connecteur A) parvient via la ligne protegee par le fusible F05 de la centrale de derivation du compartiment moteur B001 (broche 20 du connecteur B). La broche B du connecteur A de M086 est reliee a la cosse negative de la batterie A001 (connecteur C).L''alimentation sous cle (15/54) arrive via la ligne protegee par le fusible F24 de B001 (broche 13 du connecteur B) a la broche 1 du connecteur B de M086.L''ordinateur M001 recoit une alimentation directe de la batterie (broche 1 du connecteur A) protegee par le fusible F01 de la centrale de derivation du compartiment moteur B001 (broche 18 du connecteur B). Il recoit egalement une alimentation sous cle (INT) a la broche 11 du connecteur E.L''ordinateur de bord M001 est egalement relie a la masse de la planche de bord cote conducteur C015 via les broches 9 et 10 du connecteur E.La centrale M086, a partir des broches 2 et 3 du connecteur B, est reliee via le reseau C-CAN avec l''ordinateur de bord M001 (broches 44 et 45 du connecteur B).A partir des broches 7 et 8 du connecteur B, la centrale M086 se connecte aux autres n?uds du reseau.L''ordinateur de bord M001, via le reseau B-CAN se connecte avec le combine de bord E050, auquel il envoie les signaux pour l''activation du temoin "Direction assistee electrique" et le signal sur l''ecran d''activation de la fonction "CITY".Le bouton de selection de la fonction "CITY" (effort sur le volant plus leger) situe dans la platine des interrupteurs H090, recoit une reference de masse de la broche 37 du connecteur D de M001 et envoie le signal d''activation de la fonction "CITY" a la broche 28 de ce meme connecteur.
EMPLACEMENT DES COMPOSANTS - CONDUITE ELECTRIQUE - Fiat 500 1.4 16v
| Code composant | Designation | Reference a l''operation |
| A001 | BATTERIE | |
| B001 | CENTRALE DE DERIVATION | |
| C015 | MASSE TABLEAU DE BORD COTE CONDUCTEUR | - |
| E050 | COMBINE DE BORD | |
| H001 | CONTACTEUR A 'CLE | |
| H090 | BLOC DE COMMANDES DES INTERRUPTEURS | |
| M001 | ORDINATEUR DE BORD | |
| M086 | CENTRALE DIRECTION ASSISTEE ELECTRIQUE |






















