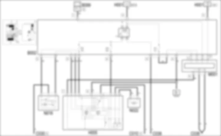
SCHEMA ELETTRICO - TERGI / LAVA LUNOTTO - Fiat BRAVO 1.9 JTD 16v
COMPONENTI - TERGI / LAVA LUNOTTO - Fiat BRAVO 1.9 JTD 16v
| Codice componenti | Denominazione | Riferimento all’operazione |
| B002 | CENTRALINA DI DERIVAZIONE SOTTO PLANCIA | |
| B099 | SCATOLA MAXI FUSE SU BATTERIA | - |
| C010 | MASSA ANTERIORE SINISTRA | - |
| C030 | MASSA POSTERIORE SINISTRA | - |
| C038 | MASSA SU TUNNEL CENTRALE | - |
| H001 | COMMUTATORE DI ACCENSIONE | |
| H005 | DEVIOGUIDA | |
| M001 | BODY COMPUTER | |
| N016 | MOTORINO TERGILUNOTTO | |
| N022 | MOTORINO ELETTROPOMPA LAVACRISTALLO/LAVALUNOTTO |
LOCALIZZAZIONE COMPONENTI - TERGI / LAVA LUNOTTO - Fiat BRAVO 1.9 JTD 16v
| Codice componenti | Denominazione | Riferimento all’operazione |
| B002 | CENTRALINA DI DERIVAZIONE SOTTO PLANCIA | |
| B099 | SCATOLA MAXI FUSE SU BATTERIA | - |
| C010 | MASSA ANTERIORE SINISTRA | - |
| C030 | MASSA POSTERIORE SINISTRA | - |
| C038 | MASSA SU TUNNEL CENTRALE | - |
| H001 | COMMUTATORE DI ACCENSIONE | |
| H005 | DEVIOGUIDA | |
| M001 | BODY COMPUTER | |
| N016 | MOTORINO TERGILUNOTTO | |
| N022 | MOTORINO ELETTROPOMPA LAVACRISTALLO/LAVALUNOTTO |
DESCRIZIONE - TERGI / LAVA LUNOTTO - Fiat BRAVO 1.9 JTD 16v
Il tergilunotto viene azionato ruotando la ghiera posta sulla leva collocata sulla parte destra del volante.Il funzionamento del motore tergilunotto e comandato in modo intermittente del dispositivo elettronico interno al devioguida che gestisce anche il tergi/lavacristallo: e prevista l''''attivazione del tergilunotto sincrona a quella del tergicristallo, ma con una frequenza pari alla meta di quella del tergicristallo stesso.Spingendo leggermente verso il volante la leva stessa, si aziona la funzione lavalunotto, realizzata tramite la stessa pompa (bidirezionale) del lavacristallo, che viene pero fatta ruotare in senso opposto ed invia posteriormente il liquido detergente, seguendo la stessa logica di comando: viene attivato il tergilunotto, quindi, al cessare del comando di lavalunotto, viene eseguita ancora una battuta supplementare.A tergicristallo funzionante, inserendo la retromarcia si attiva automaticamente il tergilunotto: tale funzione viene gestita dal dispositivo elettronico del devioguida che riceve tale informazione dall’interruttore delle luci retromarciaIl tergilunotto e il lavacristallo possono essere azionati “sottochiave” escluso avviamento (INT/A).Il circuito tergi/lavalunotto e protetto da due specifici fusibili (uno protegge anche il circuito tergi/lavacristallo) e comandato dal teleruttore esclusione sotto chiave, posti nella centralina di derivazione sottoplancia.
DESCRIZIONE FUNZIONALE - TERGI / LAVA LUNOTTO - Fiat BRAVO 1.9 JTD 16v
Il dispositivo elettronico interno al devioguida H5 ed i comandi sulla leva destra dello stesso vengono alimentati al pin 11 del connettore A dalla linea "sotto chiave'''' (INT/A) del teleruttore T12 protetta dal fusibile F43, entrambi contenuti nella centralina sottoplancia B2 .La parte di dispositivo elettronico del devioguida H5 che gestisce la funzione tergilunotto viene alimentata al pin 2 del connettore C dalla stessa linea "sotto chiave'''' (INT/A) del teleruttore T12 protetta dal fusibile F52, sempre contenuti nella centralina sottoplancia B2 .Il pin 7 del connettore A e il pin 5 del connettore C di H5 sono a massa.Inserendo la funzione tergilunotto, il devioguida H5 invia il segnale di comando al motorino tergilunotto N16 dal pin 3 del connettore C; al pin 4 giunge invece il segnale di massa proveniente dalla camma di fine corsa del motorino che arresta il funzionamento.Il motorino N16 e poi collegato a massa.L''''interruttore lavacristallo/lavalunotto invia, una volta azionato, due segnali dai pin 10 e 12 del connettore A, che azionano direttamente la pompa del lavacristallo/lavalunotto N22 .Al pin 3 del connettore A giunge il segnale di attivazione automatica del tergilunotto




























