AUTOMOTIVE ELECTRICIANS

Fiat MULTIPLA 1.9 JTD 8V da 06/99 a 03/02 – ALLARME – – Euro 3 – SCHEMA ELETTRICO, LOCALIZZAZIONE COMPONENTI, DESCRIZIONE FUNZIONALE – SCHEMA ELETTRICO, LOCALIZZAZIONE COMPONENTI, DESCRIZIONE FUNZIONALE

Fiat MULTIPLA 1.9 JTD 8V  da 06/99 a 03/02 – ALLARME –  – Euro 3 – SCHEMA ELETTRICO, LOCALIZZAZIONE COMPONENTI, DESCRIZIONE FUNZIONALE – SCHEMA ELETTRICO, LOCALIZZAZIONE COMPONENTI, DESCRIZIONE FUNZIONALE
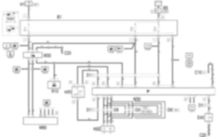
Schema elettrico



Componenti
Codice componenteDenominazioneRiferimento al complessivo
B1Centralina di derivazioneB5Scatola MAXI FUSEB26Fus. alim. sotto chiave escluso avviam. (INT/A)-
C10Massa ant. sinistra-
C11Massa ant. destra-
C15Massa plancia lato guida-
C20Massa plancia lato passeggero-
C30Massa posteriore sinistra-
C31Massa posteriore destra-
D1Giunzione ant./plancia-
D6Giunzione ant./posteriore-
D30Giunzione porta ant. sinistra-
D31Giunzione porta ant. destra-
D35Giunzione porta posteriore sinistra-
D36Giunzione porta posteriore destra-
D085Giunzione posteriore/portellone ( POSTERIORE )-
E40Led allarmeH1Commutatore di accensioneH70Commutatore allarmeH90Gruppo comandi interruttoriH90Gruppo comandi interruttoriI10Interruttore apertura cofano motoreI11Interruttore apertura bauleI11Interruttore apertura bauleK62Gruppo sensori volumetrici per allarmeM30Centralina allarmeM35Ricevitore telecomando allarmeM40Centralina servizi integratiM80Centralina comando bloccaporte-
N50Motoriduttore serratura porta ant. sinistraN51Motoriduttore serratura porta ant. destraN55Motoriduttore serratura porta posteriore sinistraN56Motoriduttore serratura porta posteriore destraR10Giunto di diagnosi multiplo-
Localizzazione componenti

Componenti
Codice componenteDenominazioneRiferimento al complessivo
B1Centralina di derivazioneB5Scatola MAXI FUSEB26Fus. alim. sotto chiave escluso avviam. (INT/A)-
C10Massa ant. sinistra-
C11Massa ant. destra-
C15Massa plancia lato guida-
C20Massa plancia lato passeggero-
C30Massa posteriore sinistra-
C31Massa posteriore destra-
D1Giunzione ant./plancia-
D6Giunzione ant./posteriore-
D30Giunzione porta ant. sinistra-
D31Giunzione porta ant. destra-
D35Giunzione porta posteriore sinistra-
D36Giunzione porta posteriore destra-
D085Giunzione posteriore/portellone ( POSTERIORE )-
E40Led allarmeH1Commutatore di accensioneH70Commutatore allarmeH90Gruppo comandi interruttoriH90Gruppo comandi interruttoriI10Interruttore apertura cofano motoreI11Interruttore apertura bauleI11Interruttore apertura bauleK62Gruppo sensori volumetrici per allarmeM30Centralina allarmeM35Ricevitore telecomando allarmeM40Centralina servizi integratiM80Centralina comando bloccaporte-
N50Motoriduttore serratura porta ant. sinistraN51Motoriduttore serratura porta ant. destraN55Motoriduttore serratura porta posteriore sinistraN56Motoriduttore serratura porta posteriore destraR10Giunto di diagnosi multiplo-
Descrizionel sistema di allarme offre una protezione anti-intrusione nella vettura di tipo volumetrico e perimetrale.Una centralina elettronica controlla infatti:dello stato delle porte e dei cofani, tramite gli interruttori nelle serrature (controllo perimetrale)della presenza di un oggetto in movimento all'interno dell'abitacolo, tramite i sensori volumetrici. (controllo volumetrico)dell'integrita dei cavi di alimentazione del sistema (sia diretta dalla batteria che "sotto chiave")dell'integrita dei cavi di alimentazione della chiave di emergenzadell'azionamento del commutatore di accensioneLa centralina e dotata della funzione di autodiagnosi che rileva e memorizza guasti e anomalie della centralina stessa, dei componenti del sistema e verifica l'integrita dei cavi dei collegamento.La centralina inoltre memorizza il numero di attivazioni e il numero degli allarmi effettuati.La logica di funzionamento della centralina puo essere modificata in modo da soddisfare le leggi che regolano l'uso dei sistemi di allarme vigenti nei vari Mercati.La centralina elettronica, che incorpora anche la sirena, e collocata anteriormente, sotto il passaruota sulla sinistra del vano motore.Il ricevitore e un dispositivo elettronico che capta il segnale del trasmettitore. E' collocato in posizione nascosta sottoplancia.E' collegato tramite linea seriale con la centralina, e gestisce direttamente le seguenti funzioni:riceve, decodifica e gestisce i segnali del telecomandocomanda il blocco e lo sblocco delle portememorizza i codici dei trasmettitori abilitati:Anche il ricevitore e dotato di una propria funzione di autodiagnosi che rileva e memorizza guasti e anomalie del ricevitore stesso, dei componenti ad esso collegati e verifica l'integrita dei cavi dei collegamentoLa chiave di emergenza per la disattivazione del sistema e collocata sul lato sinistro della plancia, accanto alla centralina di derivazione. Essa consente di escludere il sistema, per esempio in caso di interventi di riparazione.Per il controllo delle porte e del baule vengono utilizzati gli stessi interruttori del sistema bloccaporte. Un interruttore apposito e invece posto sulla serratura del cofano motore. La centralina genera anche un segnale "porte aperte', attivo se una sola delle porte risulta non ben chiusa, inviato al quadro strumenti 2880281VedereE4010STRUMENTO DI BORDO . I sensori volumetrici controllano che non vi siano intrusioni in vettura. Sono collocati nei pressi della plafoniera anterioreIl led di deterrenza e posto al centro della plancia e segnala lo stato del sistema (inserito, disinserito, ecc..) ed anche eventuali anomalie. Per maggior dettagli vedere 2879326Descrizioni e Funzionamento5580EDISPOSITIVO ANTIFURTO . La centralina del sistema di allarme ha le linee di alimentazione diretta e sotto chiave protette da due fusibili della centralina di derivazione., come pure il ricevitore del telecomando.La centralina del sistema di allarme ed il ricevitore del telecomando hanno le linee di alimentazione diretta e sotto chiave protette da tre fusibili della centralina di derivazione.
Descrizione funzionale Il sistema di allarme e gestito dalla centralina allarme M30 , integrata con la sirena. La centralina e alimentata direttamente dalla batteria al pin 3 del connettore A dalla linea del maxifuse J/B1 di B5 e protetta dal fusibile F10 della centralina di derivazione B1 , e al pin 7 del connettore B (alimentazione per le luci di direzione).dalla linea protetta dal fusibile F9 ; sempre della centralina di derivazione B1 . L'alimentazione 'sotto chiave' (INT) giunge al pin 12 del connettore B della centralina M30 . attraverso la linea protetta dal fusibile F1 della centralina B1 . Il pin 9 del connettore A e a massa. La centralina M30 controlla la chiusura delle porte tramite gli interruttori N50 , N55 , N51 , N56 , che inviano, se la porta e aperta, un segnale di massa rispettivamente ai pin 8, 15, 9, 16 del connettore B. Dal pin 14 del connettore B di M30 parte il segnale porte aperte per il quadro strumenti 2880281VedereE4010STRUMENTO DI BORDO . Il cofano motore e controllato dall'interruttore I10 , che si collega al pin 18 del connettore B., mentre il baule dall'interruttore I11 , che si collega al pin 17 del connettore B. (e lo stesso interruttore che fa accendere la luce baule: 2879982VedereE2520LUCE CASSETTO - LUCE BAULE - LUCE ANTINA PARASOLE Il pin 13 del connettore B alimenta il commutatore di emergenza H70 , che rimanda i segnali di ON e OFF rispettivamente ai pin 7 e 4 del connettore A. Il pin 1 del connettore A di M30 invia il segnale di comando del led allarme, collocato al centro della plancia E40 . I sensori volumetrici K62 ricevono alimentazione e massa rispettivamente dai pin 8 e 11 del connettore A di M30 , e rimandano il segnale di controllo di allarme al pin 12 del connettore A di M30 . Dai pin 1 e 2 del connettore B di M30 escono i segnali di comando per le luci di direzione: 2879889VedereE2020LUCI DIREZIONE / EMERGENZA . Il ricevitore del telecomando M35 e alimentato direttamente dalla batteria al pin 3 dalla linea protetta dal fusibile F10 e sotto chiave (INT) al pin 7 dalla linea protetta dal fusibile F1 ; entrambi i fusibili sono posti nella centralina di derivazione B1 . Il pin 4 e a massa. Da M35 (pin 5 e 6) escono i segnali rispettivamente di 'blocco porte' e 'sblocco porte' per la centralina bloccaporte M802880079VedereE3040BLOCCAPORTE . La centralina M30 e il ricevitore M35 sono entrambi dotati di un sistema di autodiagnosi, che puo essere utilizzato collegandosi al connettore R10 : ad esso arrivano i segnali dal pin 6 del connettore A di M30 e dal pin 2 del ricevitore del telecomando M35 . Tale linea seriale funge anche da collegamento tra M30 e M35 .

Centralina di derivazione



B001A



B001A



B001C



B001C



B001D



B001E



B001E



B001E



B001F



B001G



B001H



B001H



B001H



B001I



B001I



B001I



B001J



B001J



B001B



B001B



B001B



B001B



B001B



B001B



B001C



B001C



B001C



B001C



B001C



B001C



B001C



B001D



B001D



B001D



B001D



B001D



B001D



B001D



B001E



B001E



B001E



B001G



B001G



B001G



B001H



B001H



B001H



B001H



B001I



B001I



B001J



B001J



B001H



Centralina di derivazione



B001A



B001A



B001C



B001C



B001D



B001E



B001E



B001E



B001F



B001G



B001H



B001H



B001H



B001I



B001I



B001I



B001J



B001J



B001B



B001B



B001B



B001B



B001B



B001B



B001C



B001C



B001C



B001C



B001C



B001C



B001C



B001D



B001D



B001D



B001D



B001D



B001D



B001D



B001E



B001E



B001E



B001G



B001G



B001G



B001H



B001H



B001H



B001H



B001I



B001I



B001J



B001J



B001H



Centralina di derivazione



B001A



B001A



B001C



B001C



B001D



B001E



B001E



B001E



B001F



B001G



B001H



B001H



B001H



B001I



B001I



B001I



B001J



B001J



B001B



B001B



B001B



B001B



B001B



B001B



B001C



B001C



B001C



B001C



B001C



B001C



B001C



B001D



B001D



B001D



B001D



B001D



B001D



B001D



B001E



B001E



B001E



B001G



B001G



B001G



B001H



B001H



B001H



B001H



B001I



B001I



B001J



B001J



B001H



Massa ant. sinistra



C010A



C010B



C010C



C010C



C010D



C010D



C010A



C010A



C010A



C010A



Massa ant. destra



C011



C011



C011



C011



C011



C011



Massa plancia lato guida



C015A



C015A



C015B



C015B



C015



Massa plancia lato passeggero



C020



C020



C020



C020



Massa posteriore sinistra



C030



C030



C030



C030



Massa posteriore destra



C031



C031



C031



Giunzione ant./plancia



D001A



D001A



D001A



D001A



D001A



D001A



D001A



D001A



D001A



D001A



D001A



D001A



D001B



D001B



D001B



D001B



D001B



D001B



D001B



D001B



D001B



D001B



D001B



D001C



D001A



D001A



D001A



D001A



D001A



D001A



D001A



D001C



D001C



D001C



D001C



D001C



D001C



D001A



D001C



D001C



D001C



D001C



D001C



D001C



D001C



D001C



Giunzione ant./posteriore



D006



D006



D006



D006



D006



D006



D006



D006



D006



D006



D006



D006



D006



D006



D006



D006



D006



D006



D006



D006



D006



D006



D006



Giunzione porta ant. sinistra



D030



D030



D030



D030



D030



D030



D030



D030



D030



D030



D030



D030



D030



D030



D030



D030



Giunzione porta ant. destra



D031



D31



D031



D031



D31



D031



D031



D031



D31



D031



D31



D031



D031



D031



D031



D031



D031



D031



D031



D031



Giunzione porta posteriore sinistra



D035



D035



D035



D035



D035



D035



D035



D035



D035



D035



D035



D035



Giunzione porta posteriore destra



D036



D036



D036



D036



D036



D036



D036



D036



D036



D036



D036



D036



Led allarme



E040



E040



E040



E040



Led allarme



E040



E040



E040



E040



Led allarme



E040



E040



E040



E040



Led allarme



E040



E040



E040



E040



Led allarme



E040



E040



E040



E040



Led allarme



E040



E040



E040



E040



Led allarme



E040



E040



E040



E040



Led allarme



E040



E040



E040



E040



Led allarme



E040



E040



E040



E040



Led allarme



E040



E040



E040



E040



Led allarme



E040



E040



E040



E040



Motoriduttore serratura porta ant. sinistra



N050



N050



N050



N050



Motoriduttore serratura porta ant. sinistra



N050



N050



N050



N050



Motoriduttore serratura porta ant. sinistra



N050



N050



N050



N050



Motoriduttore serratura porta ant. sinistra



N050



N050



N050



N050



Motoriduttore serratura porta ant. sinistra



N050



N050



N050



N050


Can't find your car? Check -> DiagnostData.com!