Schaltplan - PARTIKELFILTERANLAGE - Fiat ULYSSE 2.0 16V JTD fino a 04/03
Bauteile - PARTIKELFILTERANLAGE - Fiat ULYSSE 2.0 16V JTD fino a 04/03
| Bauteil-Nr. | Bezeichnung | Bezug zur Baugruppe |
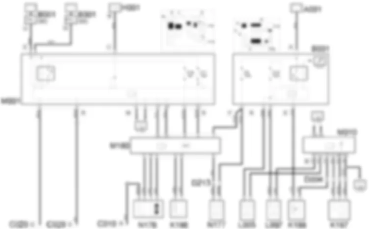
| B001 | Verteiler im Motorraum | 5505A |
| C010 | Masse vorne links | - |
| C020 | Masse Armaturenbrett Beifahrerseite | - |
| D004 | Verbindung vorne / Motor | - |
| D213 | Verbindung Kraftstoffbehalter | - |
| K186 | Sensor fur Dieseladditivstand | - |
| K187 | Differentialdrucksensor FAP | 1080G |
| K188 | Temperatursensor hinter dem Katalysator | 1080G |
| L005 | E-Ventil zur Deaktivierung des dritten Kolbens der Einspritzpumpe | - |
| L097 | E-Ventil Luftvorwarmung | - |
| M001 | Body Computer | 5505A |
| M010 | Motorelektronik | 1060G |
| M180 | Elektronik Diesel-Additivzufuhr | 1080G |
| N176 | Pumpe Diesel-Additivzufuhr | 1080G |
| N177 | Einspritzventil Diesel-Additivzufuhr | 1080G |
Einbaulage Bauteile - PARTIKELFILTERANLAGE - Fiat ULYSSE 2.0 16V JTD fino a 04/03
Bauteile - PARTIKELFILTERANLAGE - Fiat ULYSSE 2.0 16V JTD fino a 04/03
| Bauteil-Nr. | Bezeichnung | Bezug zur Baugruppe |
| B001 | Verteiler im Motorraum | 5505A |
| C010 | Masse vorne links | - |
| C020 | Masse Armaturenbrett Beifahrerseite | - |
| D004 | Verbindung vorne / Motor | - |
| D213 | Verbindung Kraftstoffbehalter | - |
| K186 | Sensor fur Dieseladditivstand | - |
| K187 | Differentialdrucksensor FAP | 1080G |
| K188 | Temperatursensor hinter dem Katalysator | 1080G |
| L005 | E-Ventil zur Deaktivierung des dritten Kolbens der Einspritzpumpe | - |
| L097 | E-Ventil Luftvorwarmung | - |
| M001 | Body Computer | 5505A |
| M010 | Motorelektronik | 1060G |
| M180 | Elektronik Diesel-Additivzufuhr | 1080G |
| N176 | Pumpe Diesel-Additivzufuhr | 1080G |
| N177 | Einspritzventil Diesel-Additivzufuhr | 1080G |
Beschreibung - PARTIKELFILTERANLAGE - Fiat ULYSSE 2.0 16V JTD fino a 04/03
Die FAP-Anlage (Partikelfilter) wird bei Fahrzeugen mit Dieselmotor zum Abbau von uber 95% der Ru?partikel im Abgas eingesetzt.Die Partikel konnen nicht durch herkommliche Katalysatoren abgebaut werden, sondern sie mussen in besonderen Filtern (Partikelfilter) abgesondert werden. Die Filter sind schnell verbraucht, wenn sie im Stadtverkehr eingesetzt werden.In der FAP-Anlage wird der Partikelfilter wahrend des Fahrzeugbetriebs automatisch regeneriert, so dass sein Wirkungsgrad unter allen Betriebsbedingungen fur etwa 80.000 km Fahrbetrieb konstant bleibt. Danach muss der Partikelfilter ausgetauscht werden.Bauteile der FAP-Anlage:
Funktionsbeschreibung - PARTIKELFILTERANLAGE - Fiat ULYSSE 2.0 16V JTD fino a 04/03
Die Motorelektronik M010 kontrolliert und regelt das gesamte elektronische System der Einspritzung und Zundung und damit auch die FAP-Anlage.Der Knoten Additiv-Steuerelektronik M180 verwaltet die Zufuhrung des Additivs.Die Elektronik M180 wird direkt durch die Batterie an Pin 1 uber die Sicherung F05 im Verteiler im Motorraum B001 mit Strom versorgt.Die gleiche Stromversorgung liegt auch am Additiv-Einspritzventil N177.An Pin 2 kommt die Stromversorgung "hinter dem Schlussel" von der durch die Sicherung F011 des Body Computer M001 geschutzten Leitung an.An den Pins 14 und 15 ist der Knoten M180 uber das CAN-Netz mit dem Body Computer M001 verbunden, wird uber CAN - Pin 3 - von der durch die Sicherung F16 im Knoten Body Computer M001 geschutzten Leitung mit Strom versorgt.Der Sensor fur den Additivstand K186 ist mit den Pins 6 und 12 von M180 verbunden.Die Additivpumpe K176 ist mit den Pins 9, 13 und 15 von M180 verbunden.Das Additiveinspritzventil N177 wird uber Pin 8 von M180 angesteuert.Das Hauptrelais der Einspritzung im Verteiler im Motorraum B001 kontrolliert das gesamte System: die Spule wird durch ein Massesignal aus Pin A44 im Stecker B der ElektronikM010 erregt und legt dann die Stromversorgung an die E.Ventile zur Deaktivierung des 3. Kolbens der Einspritzpumpe L005 und der Ansaugluftvorwarmung L097 von den Pins 1 und 9 des Steckers B uber die durch die Sicherung F15 von B001 geschutzte Leitung an.Das E-Ventil zur Deaktivierung des 3. Kolbens der Einspritzpumpe L005 steuert wahrend der unterstutzten Regenerierung den 3. Kolben der Hochdruckpumpe, damit fur die Nacheinspritzung die richtige Kraftstoffmenge sichergestellt ist. Es wird vom Hauptrelais mit Strom versorgt und durch ein Signal von Pin C3 des Steckers B von M010 angesteuert.Das E-Ventil der Ansaugluftvorwarmung L097, wird uber das Hauptrelais mit Strom versorgt und durch ein Signal von Pin B3 des Steckers B von M010 angesteuert.Der Temperatursensor hinter dem Katalysator K188 erhalt eine Bezugsmasse an Pin 2 des Steckers E von B001 und sendet ein Signal an Pin F3 von M010.Der Differentialdrucksensor K187 ist mit den Pins D3, M3 und H2 von M010 verbunden.



















