Bauteile - HANDSCHUHFACHLEUCHTE - KOFFERRAUMLEUCHTE - LEUCHTE SONNENBLENDE - Fiat ULYSSE 2.2 16V JTD fino a 04/03
| Bauteil-Nr. | Bezeichnung | Bezug zur Baugruppe |
| B001 | VERTEILER IM MOTORRAUM | |
| C020 | MASSE ARMATURENBRETT BEIFAHRERSEITE | - |
| C030 | MASSE HINTEN LINKS | - |
| C031 | MASSE HINTEN RECHTS | - |
| D042 | VERBINDUNG DECKENLEUCHTEN | - |
| D085 | VERBINDUNG HINTEN/HECKKLAPPE | - |
| G010 | VORDERE INNENLEUCHTE | |
| G025 | DECKENLEUCHTE HINTEN LINKS | - |
| G030 | HANDSCHUHFACHLEUCHTE | |
| G031 | LEUCHTE IN DER SONNENBLENDE FAHRERSEITE | |
| G032 | LEUCHTE AN DER SONNENBLENDE BEIFAHRERSEITE | |
| G035 | Aschenbecherbeleuchtung | - |
| H001 | Zundschloss | |
| I011 | OFFNUNGSSCHALTER KOFFERRAUM | |
| M001 | BODY COMPUTER |
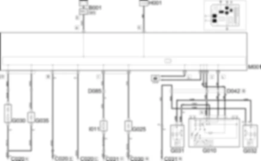
Beim Offnen der Hecktur werden die Deckenleuchten (eine pro Seite) im Kofferraum automatisch eingeschaltet.Die Deckenleuchten werden progressiv ausgeschaltet, indem die Hecktur geschlossen wird.769 Die Deckenleuchten erloschen auf jeden Fall nach einigen Minuten, damit die Batterie nicht entladen wird. Die Leuchte im Handschuhfach wird - wenn der Zundschlussel auf M steht - beim Offnen des Fachs eingeschaltet und beim Schlie?en wieder ausgeschaltet.Die Leuchten an jeder der beiden Sonnenblenden werden eingeschaltet wenn die Schutzblende geoffnet wird. Es werden beide Leuchten an den Seiten jedes Schminkspiegels eingeschaltet.Die Aschenbecherbeleuchtung wird mit dem Schlussel auf M eingeschaltet.
Die Leuchte im Ablagefach G030 wird beim Offnen des selben von einem Schalter in dessen Innern eingeschaltet. Der Knoten Body Computer M001 liefert die Stromversorgung an Pin 1 der Deckenleuchte im Ablagefach G030 von Pin 4 Stecker D.Auch das Licht im Aschenbecher G035 (Pin 1) erhalt die Stromversorgung vom Knoten Body Computer M001 (Pin 7 Stecker D).Das Offnen der Hecktur wird durch den speziellen Schalter I011 gemeldet: bei geoffneter Hecktur sendet der Schalter (Pin 1) ein Massesignal an den Knoten Body Computer M001 (Pin 10 Stecker I).Die Stromversorgung der hinteren Deckenleuchte G025 (Pin 1) wird vom Knoten Body Computer M001 (Pin 16 Stecker I) geliefert.Die Lichter an den Sonnenblenden G031 (Fahrerseite) und G032 (Beifahrerseite), wie auch die vordere Deckenleuchte G010 (Pin 2 Stecker A) erhalten die Stromversorgung an Pin 1 von Pin 20 des Steckers I des Knotens Body Computer M001.
| Bauteil-Nr. | Bezeichnung | Bezug zur Baugruppe |
| B001 | VERTEILER IM MOTORRAUM | |
| C020 | MASSE ARMATURENBRETT BEIFAHRERSEITE | - |
| C030 | MASSE HINTEN LINKS | - |
| C031 | MASSE HINTEN RECHTS | - |
| D042 | VERBINDUNG DECKENLEUCHTEN | - |
| D085 | VERBINDUNG HINTEN/HECKKLAPPE | - |
| G010 | VORDERE INNENLEUCHTE | |
| G025 | DECKENLEUCHTE HINTEN LINKS | - |
| G030 | HANDSCHUHFACHLEUCHTE | |
| G031 | LEUCHTE IN DER SONNENBLENDE FAHRERSEITE | |
| G032 | LEUCHTE AN DER SONNENBLENDE BEIFAHRERSEITE | |
| G035 | Aschenbecherbeleuchtung | - |
| H001 | Zundschloss | |
| I011 | OFFNUNGSSCHALTER KOFFERRAUM | |
| M001 | BODY COMPUTER |




























