Bauteile - ZENTRALVERRIEGELUNG - Fiat ULYSSE 2.2 16V JTD fino a 04/03
| Bauteil-Nr. | Bezeichnung | Bezug zur Baugruppe |
| A001 | BATTERIE | - |
| B001 | VERTEILER IM MOTORRAUM | |
| B005 | GRO?SICHERUNGSKASTEN | - |
| C015 | MASSE ARMATURENBRETT FAHRERSEITE | - |
| C020 | MASSE ARMATURENBRETT BEIFAHRERSEITE | - |
| C030 | MASSE HINTEN LINKS | - |
| C031 | MASSE HINTEN RECHTS | - |
| D006 | VORDERE/HINTERE VERBINDUNG | - |
| D020 | VERBINDUNG ARMATURENBRETT / HINTEN | - |
| D030 | VERBINDUNG FAHRERTUR | - |
| D031 | VERBINDUNG BEIFAHRERTUR | - |
| D042 | VERBINDUNG DECKENLEUCHTEN | - |
| D085 | VERBINDUNG HINTEN/HECKKLAPPE | - |
| D196 | VERBINDUNG LINKE SCHIEBETUR | |
| D197 | VERBINDUNG RECHTE SCHIEBETUR | |
| I011 | OFFNUNGSSCHALTER KOFFERRAUM | |
| I018 | SCHALTER AN DER HINTERTUR LINKS | - |
| I019 | SCHALTER AN DER HINTERTUR RECHTS | - |
| I110 | SCHALTER ZUM SCHLIE?EN DER TUR | - |
| M001 | BODY COMPUTER | |
| M093 | ELEKTRONIK KNOTEN LENKRAD (NVO) | |
| M171 | KNOTEN SEITLICHE SCHIEBETUREN | |
| N050 | VERRIEGELUNGSANTRIEB TURSCHLOSS FAHRERSEITE | Arbeit. 7005N TURVERRIEGELUNG/ZENTRALVERRIEGELUNG DER VORDERTUREN |
| N051 | VERRIEGELUNGSANTRIEB TURSCHLOSS BEIFAHRERSEITE | Arbeit. 7005N TURVERRIEGELUNG/ZENTRALVERRIEGELUNG DER VORDERTUREN |
| N055 | VERRIEGELUNGSANTRIEB TURSCHLOSS FONDTUR LINKS | |
| N056 | VERRIEGELUNGSANTRIEB TURSCHLOSS FONDTUR RECHTS | |
| N057 | VERRIEGELUNGSANTRIEB KOFFERRAUM | - |
Die gleichzeitige Betatigung der Verriegelung der Turen erfolgt durch:- den Schlussel,- die Griffe an den Turen,- die Taste im Inneren,- die Fernbedienung.Die im Schlussel integrierte FB verfugt uber 4 Tasten:- eine fur die Aktivierung des zentralen Schlie?ens (Verriegelung), zum Scharfen der Alarmanlage und fur die Funktion "Auffinden",- eine fur die zentrale Entriegelung und das Abschalten der Alarmanlage,- eine fur das Offnen/Schlie?en der rechten seitlichen Schiebetur,- eine fur das Offnen/Schlie?en der linken seitlichen Schiebetur.Wird die Verriegelungstaste langere Zeit gedruckt, wird die Funktion "Auffinden" aktiviert: es werden einige Sekunden lang alle Innenleuchten und die Fahrtrichtungsanzeiger eingeschaltet.Wird die Entriegelungstaste ein zweites Mal langere Zeit gedruckt, wird die Funktion "Innenraum beluften" aktiviert: die vorderen und hinteren Seitenscheiben werden vollstandig geoffnet und lassen die Au?enluft in den Innenraum einstromen.Die Taste zum zentralen Schlie?en in der Nahe der vorderen Deckenleuchte ermoglicht das Ver- und Entriegeln aller Turen von innen aus. Au?erdem konnen die Turen mit dem Griff an jeder der vier Turen von innen geoffnet werden: durch Betatigen eines beliebigen Handgriffs werden alle Turen einschlie?lich der Heckklappe entriegelt.Die Heckklappe verfugt uber ein elektrisches Schloss mit 2 Stellungen:- Stellung "verriegelt" (Stellung deaktiviert),- Stellung "gelost" (Stellung aktiviert).Das Schloss der Heckklappe hat keinen Schlosszylinder, das Offnen der Heckklappe erfolgt durch eine Taste neben dem Kennzeichen. Diese Au?entaste wird beim Verriegeln des Fahrzeugs deaktiviert, ist jedoch aktiv, wenn der Zundschlussel auf M steht oder eine Minute nach Drehen des Zundschlussels auf S.Die Betatigung der Schlosser wird vom Body Computer verwaltet, der den tatsachlichen Zustand der Schlosser anhand der Signale kontrolliert, die von den Schaltern an den Schlossern kommen (die Signale werden auch fur die Zeitsteuerung der Leuchten verwendet). Auf diese Weise erfolgt der "Verriegelungsbefehl" nur, wenn alle Turen richtig geschlossen und die Schlosser entriegelt sind. Umgekehrt erfolgt der "Entriegelungsbefehl" nur bei verriegelten Schlossern.Die Antenne des FB-Empfangers ist in den Lenksaulenschalter integriert (Knoten Lenkrad). Die Information uber die Aktivierung und/oder Deaktivierung wird uber das CAN-Netz an den Body Computer gesendet.767 Die automatische Verriegelung der Turen bei fahrendem Fahrzeug erfolgt (wenn die entsprechende Funktion aktiv ist), sobald das Fahrzeug 10 km/h erreicht. Durch einen kurzen Druck (< 3 Sekunden) auf die Taste zum zentralen Schlie?en wird die Funktion des automatischen Verriegelns bis zum nachsten Abstellen des Motors deaktiviert.Das Abschalten und die Aktivierung der Funktion zum automatischen Verriegeln bei fahrendem Fahrzeug erfolgt durch langeren Druck auf die Zentralverriegelungstaste. Das Verriegeln der Heckklappe ist immer aktiv und kann nicht deaktiviert werden.767 Bei einem Unfall erhalt der Body Computer von der Airbagelektronik die Information uber die Airbagauslosung und befiehlt dann das Offnen aller Turen.
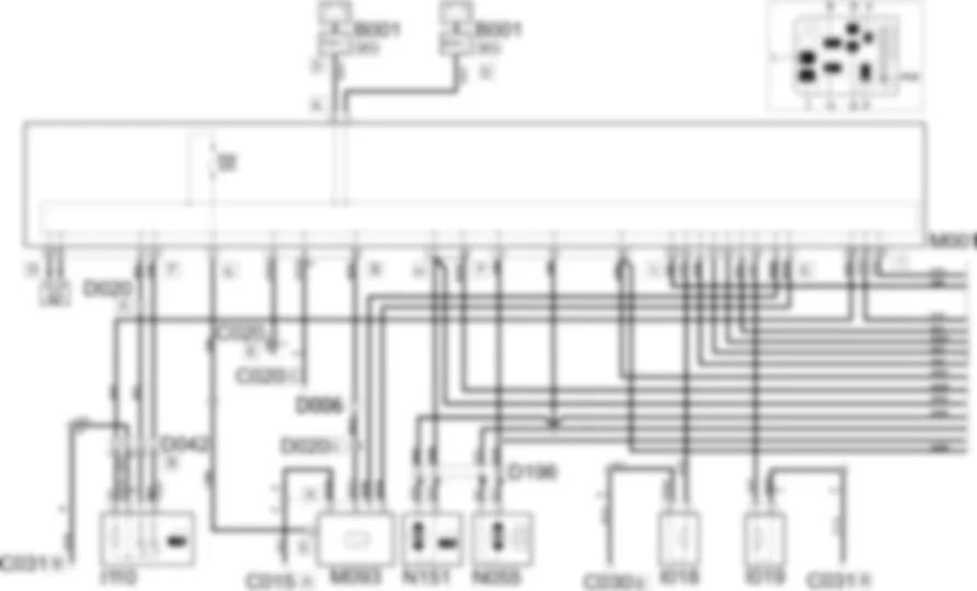
Die Zentralverriegelung wird vom Knoten Body Computer M001 verwaltet.Der Knoten Lenkradelektronik M093 erhalt das Signal fur Offnen/Schlie?en der Turen von der jeweiligen FB.Der Befehl (Offnen oder Schlie?en der Turen) wird uber das CAN-Netz vom Knoten Lenkradelektronik M093 (Pin 1 und 3 des Steckverbinders A) an den Knoten Body Computer M001 (Pin 5 bzw. 3 des Steckers G) gesendet. Letzterer liefert (Pin 11 des Steckers B und Pin 1 des Steckers G) uber zwei Leitungen die Stromversorgung (Pin 5 des Steckers A bzw. Pin 4 des Steckers D), wobei nur die zweite von der Sicherung F04 geschutzt ist.Der Befehl zum Offnen/Schlie?en der Turen kann auch vom Innenschalter I110 kommen.Wird der entsprechende Schalter an der Baugruppe I110 gedruckt, wird von Pin 6 zum Knoten Body Computer M001 (Pin 28 des Steckers I) ein Massesignal uber das erfolgte Ver-/Entriegeln der Schlosser gesendet. Der Body Computer M001 (Pin 9 des Steckers D und Pin 12 des Steckers F) liefert auch die Stromversorgung der Baugruppe I110 (Pin 1 bzw. 4).Auch die E-Motoren der hinteren Schlosser N055, N056 (Pin 3 und 1) sowie die der vorderen Schlosser N050, N051 (Pin 7 und 2) werden vom Knoten Body Computer M001 (Pin 13 bzw. 15 des Steckers F) mit Strom versorgt, die je nach erhaltenem Befehl das Offnen oder das Schlie?en der Turen ansteuern.Das Signal zur "Superschlie?ung" wird von Pin 16 des Steckers F des Knotens Body Computer M001 an Pin 8 der vorderen Turschlosser N050 (links) und N051 (rechts) gesendet.Das Schlie?signal "Kindersicherung" kommt von Pin 2 des Steckers H des Knotens Body Computer M001 zu Pin 3 der hinteren Motoren N151 (links) und N152 (rechts). Pin 1 der genannten Motoren ist mit Pin 15 des Steckers F von M001 verbunden.Die vorderen Schlosser N050 und N051 kommunizieren mit dem Body Computer M001:- von Pin 9 und 5 den Ver- bzw. Entriegelungszustand zu Pin 27 bzw. 29 des Steckers L,- von Pin 6 den Offnungs- bzw. Schlie?zustand der Tur zu Pin 4 bzw. 5 desselben Steckers.Das Offnen der seitlichen Schiebeturen wird von den speziellen Schaltern I018 (links) und I019 (rechts) von Pin 1 zum Body Computer M001 gemeldet (Pin 34 bzw. 33 des Steckers L).Das elektrische Kofferraumschoss N057 wird an Pin 1 ebenfalls vom Body Computer M001 betatigt (Pin 35 des Steckers I) und sendet (Pin 3) ein Signal uber den geschlossenen Kofferraum zu Pin 13 des Steckers L).Auch das vom Schalter an der Kofferraumhaube (I011) kommende Signal (Pin 1) wird an den Knoten Body Computer M001 ubertragen (Pin 10 des Steckers I).
| Bauteil-Nr. | Bezeichnung | Bezug zur Baugruppe |
| A001 | BATTERIE | - |
| B001 | VERTEILER IM MOTORRAUM | |
| B005 | GRO?SICHERUNGSKASTEN | - |
| C015 | MASSE ARMATURENBRETT FAHRERSEITE | - |
| C020 | MASSE ARMATURENBRETT BEIFAHRERSEITE | - |
| C030 | MASSE HINTEN LINKS | - |
| C031 | MASSE HINTEN RECHTS | - |
| D006 | VORDERE/HINTERE VERBINDUNG | - |
| D020 | VERBINDUNG ARMATURENBRETT / HINTEN | - |
| D030 | VERBINDUNG FAHRERTUR | - |
| D031 | VERBINDUNG BEIFAHRERTUR | - |
| D042 | VERBINDUNG DECKENLEUCHTEN | - |
| D085 | VERBINDUNG HINTEN/HECKKLAPPE | - |
| D196 | VERBINDUNG LINKE SCHIEBETUR | |
| D197 | VERBINDUNG RECHTE SCHIEBETUR | |
| I011 | OFFNUNGSSCHALTER KOFFERRAUM | |
| I018 | SCHALTER AN DER HINTERTUR LINKS | - |
| I019 | SCHALTER AN DER HINTERTUR RECHTS | - |
| I110 | SCHALTER ZUM SCHLIE?EN DER TUR | - |
| M001 | BODY COMPUTER | |
| M093 | ELEKTRONIK KNOTEN LENKRAD (NVO) | |
| M171 | KNOTEN SEITLICHE SCHIEBETUREN | |
| N050 | VERRIEGELUNGSANTRIEB TURSCHLOSS FAHRERSEITE | Arbeit. 7005N TURVERRIEGELUNG/ZENTRALVERRIEGELUNG DER VORDERTUREN |
| N051 | VERRIEGELUNGSANTRIEB TURSCHLOSS BEIFAHRERSEITE | Arbeit. 7005N TURVERRIEGELUNG/ZENTRALVERRIEGELUNG DER VORDERTUREN |
| N055 | VERRIEGELUNGSANTRIEB TURSCHLOSS FONDTUR LINKS | |
| N056 | VERRIEGELUNGSANTRIEB TURSCHLOSS FONDTUR RECHTS | |
| N057 | VERRIEGELUNGSANTRIEB KOFFERRAUM | - |








































