SCHEMA ELETTRICO - AUTORADIO - Fiat BRAVO 1.9 JTD 16v
COMPONENTI - AUTORADIO - Fiat BRAVO 1.9 JTD 16v
| Codice componenti | Denominazione | Riferimento all’operazione |
| B002 | CENTRALINA DI DERIVAZIONE SOTTO PLANCIA | |
| B099 | SCATOLA MAXI FUSE SU BATTERIA | - |
| C030 | MASSA POSTERIORE SINISTRA | - |
| C038 | MASSA SU TUNNEL CENTRALE | - |
| D020 | GIUNZIONE PLANCIA/POSTERIORE | - |
| D030 | GIUNZIONE PORTA ANTERIORE SINISTRA | - |
| D031 | GIUNZIONE PORTA ANTERIORE DESTRA | - |
| D035 | GIUNZIONE PORTA POSTERIORE SINISTRA | - |
| D036 | GIUNZIONE PORTA POSTERIORE DESTRA | - |
| D047 | GIUNZIONE CONTATTO SPIRALATO | |
| H001 | COMMUTATORE DI ACCENSIONE | |
| M001 | BODY COMPUTER | |
| P020 | AUTORADIO | |
| P025 | ALIMENTATORE ANTENNA | |
| P030 | ALTOPARLANTE POSTERIORE SINISTRO | |
| P031 | ALTOPARLANTE POSTERIORE DESTRO | |
| P035 | ALTOPARLANTE SU PORTA ANTERIORE LATO GUIDA | |
| P036 | ALTOPARLANTE SU PORTA ANTERIORE LATO PASSEGGERO | |
| P045 | ALTOPARLANTE TWEETER ANTERIORE LATO GUIDA | |
| P046 | ALTOPARLANTE TWEETER ANTERIORE LATO PASSEGGERO | |
| P047 | ALTOPARLANTE TWEETER POSTERIORE SINISTRO | - |
| P048 | ALTOPARLANTE TWEETER POSTERIORE DESTRO | - |
| P049 | ALTOPARLANTE POSTERIORE CENTRALE WOOFER | - |
| P070 | AMPLIFICATORE RADIO HIFI | - |
LOCALIZZAZIONE COMPONENTI - AUTORADIO - Fiat BRAVO 1.9 JTD 16v
| Codice componenti | Denominazione | Riferimento all’operazione |
| B002 | CENTRALINA DI DERIVAZIONE SOTTO PLANCIA | |
| B099 | SCATOLA MAXI FUSE SU BATTERIA | - |
| C030 | MASSA POSTERIORE SINISTRA | - |
| C038 | MASSA SU TUNNEL CENTRALE | - |
| D020 | GIUNZIONE PLANCIA/POSTERIORE | - |
| D030 | GIUNZIONE PORTA ANTERIORE SINISTRA | - |
| D031 | GIUNZIONE PORTA ANTERIORE DESTRA | - |
| D035 | GIUNZIONE PORTA POSTERIORE SINISTRA | - |
| D036 | GIUNZIONE PORTA POSTERIORE DESTRA | - |
| D047 | GIUNZIONE CONTATTO SPIRALATO | |
| H001 | COMMUTATORE DI ACCENSIONE | |
| M001 | BODY COMPUTER | |
| P020 | AUTORADIO | |
| P025 | ALIMENTATORE ANTENNA | |
| P030 | ALTOPARLANTE POSTERIORE SINISTRO | |
| P031 | ALTOPARLANTE POSTERIORE DESTRO | |
| P035 | ALTOPARLANTE SU PORTA ANTERIORE LATO GUIDA | |
| P036 | ALTOPARLANTE SU PORTA ANTERIORE LATO PASSEGGERO | |
| P045 | ALTOPARLANTE TWEETER ANTERIORE LATO GUIDA | |
| P046 | ALTOPARLANTE TWEETER ANTERIORE LATO PASSEGGERO | |
| P047 | ALTOPARLANTE TWEETER POSTERIORE SINISTRO | - |
| P048 | ALTOPARLANTE TWEETER POSTERIORE DESTRO | - |
| P049 | ALTOPARLANTE POSTERIORE CENTRALE WOOFER | - |
| P070 | AMPLIFICATORE RADIO HIFI | - |
DESCRIZIONE - AUTORADIO - Fiat BRAVO 1.9 JTD 16v
A richiesta e disponibile un impianto Hi-Fi Sound System INTERSCOPE.L''impianto audio Interscope e caratterizzato da un sound aggressivo in grado di soddisfare specialmente un pubblico giovane.Il sistema e composto da 8 altoparlanti, un amplificatore di potenza e un box sub-woofer per bassi profondi.L''impianto e stato sviluppato ad hoc per la vettura: le proprieta acustiche dell''abitacolo sono state accuratamente studiate in modo che amplificatore e altoparlanti si adattino perfettamente alla vettura: in ogni posizione dell''abitacolo si gode di un ascolto ottimale.L''impianto prevede, a differenza dell''impianto fornito di serie:- altoparlanti mid-woofer e tweeter specifici sia anteriori che posteriorii;- box sub-woofer contenente l’ amplificatore di potenza posto nel vano baule, lato sinistro.- amplificatore a 4 canali (4 x 20 W RMS).Gli altri componenti (autoradio, antenna, ecc.) sono i medesimi dell''impianto di serie.Per maggiori dettagli
DESCRIZIONE FUNZIONALE - AUTORADIO - Fiat BRAVO 1.9 JTD 16v
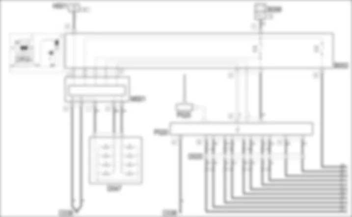
L''autoradio P20 e alimentata direttamente (7 del connettore A) dalla batteria tramite la linea del fusibile F39 della centralina sottoplancia B2 .Il pin 8 del connettore A e invece a massa.Al pin 1 e 3 del connettore A giunge la linea CAN con la quale l''autoradio P20 si collega al Body Computer M1 e agli altri nodi del sistema.Al Body Computer M1 si collegano i comandi radio sul volante, tramite il "contatto spiralato" D47: al pin 27 del connettore H di M1 gungono i segnali dei pulsanti posti alla destra del volante, mentre al pin 15 del connettore H di M1 gungono i segnali dei pulsanti posti alla sinistra del volante.Il Body Computer M1 e alimentato direttamente dalla batteria dalla linea protetta dal maxifuse d B99 al pin 18 del connettore F di interfaccia con la centralina sottoplancia B2; la alimentazione sotto chiave (INT) giunge al pin 9 del connettore F di interfaccia con la centralina B2.L''amplificatore P70 e alimentato direttamente dalla batteria - al pin C8 - tramite la linea del fusibile F32 della centralina sottoplancia B2; il pin C1 dell''amplificatore P70 e a massa.Il pin C2 di P70 si collega poi con l''autoradio P20 - pin 5 del connettore A - che fornisce un segnale positivo consenso per l''accensione dell''amplificatore stesso.Il pin C3 di P70 si collega poi con l''autoradio P20 - pin 2 del connettore A - che fornisce un segnale positivo per il riconoscimento dello stato del subwoofer per la taratura acustica specifica.Dal connettore B di P20 escono i cavi con i segnali verso l’ amplificatore P70 (pin B7-C7, C4-B4, B5-C5 e B6-C6)Dal connettore A di P70 escono i cavi con i segnali verso gli altoparlanti;- pin A6 e A7 agli altoparlanti anteriori lato sinistro P35 e P45;- pin A4 e A5 agli altoparlanti anteriori lato destro P36 e P46;- pin A3 e A2 agli altoparlantI posteriori lato sinistro P30 e P47;- pin B2 e B3 agli altoparlanti posteriori lato destro P31 e P48.










































