AUTOMOTIVE ELECTRICIANS

Fiat MULTIPLA 1.9 JTD 8V da 06/99 a 03/02 – LUCI POSIZIONE / TARGA – – Guida destra – SCHEMA ELETTRICO, LOCALIZZAZIONE COMPONENTI, DESCRIZIONE FUNZIONALE – SCHEMA ELETTRICO, LOCALIZZAZIONE COMPONENTI, DESCRIZIONE FUNZIONALE

Fiat MULTIPLA 1.9 JTD 8V  da 06/99 a 03/02 – LUCI POSIZIONE / TARGA –  – Guida destra – SCHEMA ELETTRICO, LOCALIZZAZIONE COMPONENTI, DESCRIZIONE FUNZIONALE – SCHEMA ELETTRICO, LOCALIZZAZIONE COMPONENTI, DESCRIZIONE FUNZIONALE
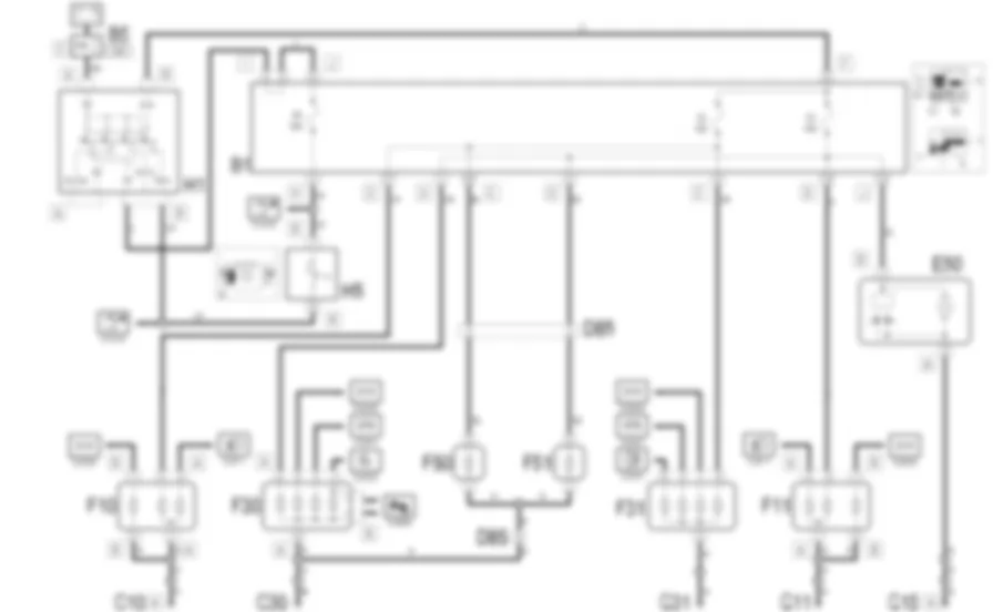
Schema elettrico

Componenti
Codice componenteDenominazioneRiferimento al complessivo
B1Centralina di derivazioneB5Scatola MAXI FUSEC10Massa ant. sinistra-
C11Massa ant. destra-
C15Massa plancia lato guida-
C30Massa posteriore sinistra-
C31Massa posteriore destra-
D085Giunzione posteriore/portellone ( POSTERIORE )-
E50Quadro strumentiF10Proiettore sinistroF11Proiettore destroF30Fanale posteriore sinistroF31Fanale posteriore destroF50Luce targa sinistraF51Luce targa destraH1Commutatore di accensioneH5Devioguida2882978Op. 5550A DEVIOGUIDA
Localizzazione componenti

Componenti
Codice componenteDenominazioneRiferimento al complessivo
B1Centralina di derivazioneB5Scatola MAXI FUSEC10Massa ant. sinistra-
C11Massa ant. destra-
C15Massa plancia lato guida-
C30Massa posteriore sinistra-
C31Massa posteriore destra-
D085Giunzione posteriore/portellone ( POSTERIORE )-
E50Quadro strumentiF10Proiettore sinistroF11Proiettore destroF30Fanale posteriore sinistroF31Fanale posteriore destroF50Luce targa sinistraF51Luce targa destraH1Commutatore di accensioneH5Devioguida2882978Op. 5550A DEVIOGUIDA
DescrizioneLe luci di posizione vengono inserite al primo scatto dell"apposita ghiera del devioguida, solo con chiave su MAR.Esse possono essere inserite anche estraendo la chiave e ruotandola in senso inverso - posizione PARK - tenendo premuto l"apposito pulsantino.Insieme alle luci di posizione vengono inserite anche le luci d"illuminazione targa e numerose altre luci interne per l"illuminazione dell"abitacolo, della strumentazione e dei comandi (queste linee sono descritte e illustrate negli schemi relativi ai componenti ai quali si riferiscono).Il circuito delle luci di posizione e protetto da due fusibili - posti nella centralina di derivazione: uno per le luci anteriori lato destro e posteriori lato sinistro, l"altro per quelle anteriori lato sinistro e posteriori lato destro.Una spia sullo strumento di bordo segnala l"avvenuto inserimento delle luci di posizione.
Descrizione funzionale Il segnale d"attivazione delle luci di posizione giunge al commutatore d"accensione H1 (STAZ) quando il devioguida H5 - connettore B pin 6 - e commutato opportunamente: si tratta di un"alimentazione sotto chiave (INT) della linea protetta dal fusibile F8 della centralina di derivazione B1 . In alternativa - con chiave in posizione PARK - l"alimentazione giunge direttamente dalla batteria (maxifuse IGN di B5 ). Dal commutatore H1 (POS) l"alimentazione e inviata alla varie luci di posizione attraverso le linee protette dai fusibili F2 ed F3 della centralina di derivazione B1 . Il primo protegge i circuiti delle luci anteriore destra F11 , posteriore sinistra F30 e targa destra F51 . Il secondo protegge i circuiti delle luci anteriore sinistra F10 , posteriore destra F31 e targa sinistra F50 . Contemporaneamente viene alimentata la spia "luci di posizione inserite" all"interno dello strumento E50 - pin 1 del connettore B -, mentre il pin 3 del connettore A di E50 fornisce la massa. Lo stesso segnale attenua l"illuminazione dello strumento a luci inserite.

Massa ant. destra



C011



C011



C011



C011



C011



C011



Massa plancia lato guida



C015A



C015A



C015B



C015B



C015



Massa posteriore sinistra



C030



C030



C030



C030



Massa posteriore destra



C031



C031



C031



Quadro strumenti



E050A



E050A



E050A



E050A



E050A



E050B



E050B



E050B



E050B



E050B



E050B



E050B



E050C



E050C



E050A



E050B



E050C



E050C



Quadro strumenti



E050A



E050A



E050A



E050A



E050A



E050B



E050B



E050B



E050B



E050B



E050B



E050B



E050C



E050C



E050A



E050B



E050C



E050C



Quadro strumenti



E050A



E050A



E050A



E050A



E050A



E050B



E050B



E050B



E050B



E050B



E050B



E050B



E050C



E050C



E050A



E050B



E050C



E050C



Quadro strumenti



E050A



E050A



E050A



E050A



E050A



E050B



E050B



E050B



E050B



E050B



E050B



E050B



E050C



E050C



E050A



E050B



E050C



E050C



Quadro strumenti



E050A



E050A



E050A



E050A



E050A



E050B



E050B



E050B



E050B



E050B



E050B



E050B



E050C



E050C



E050A



E050B



E050C



E050C



Quadro strumenti



E050A



E050A



E050A



E050A



E050A



E050B



E050B



E050B



E050B



E050B



E050B



E050B



E050C



E050C



E050A



E050B



E050C



E050C



Quadro strumenti



E050A



E050A



E050A



E050A



E050A



E050B



E050B



E050B



E050B



E050B



E050B



E050B



E050C



E050C



E050A



E050B



E050C



E050C



Quadro strumenti



E050A



E050A



E050A



E050A



E050A



E050B



E050B



E050B



E050B



E050B



E050B



E050B



E050C



E050C



E050A



E050B



E050C



E050C



Quadro strumenti



E050A



E050A



E050A



E050A



E050A



E050B



E050B



E050B



E050B



E050B



E050B



E050B



E050C



E050C



E050A



E050B



E050C



E050C


Can't find your car? Check -> DiagnostData.com!