Schema elettricoComponenti
| Codice componente | Denominazione | Riferimento al complessivo |
| B1 | Centralina di derivazione | B5 | Scatola MAXI FUSE | B17 | Fusibile alzacristalli posteriori | - |
| B26 | Fus. alim. sotto chiave escluso avviam. (INT/A) | - |
| C15 | Massa plancia lato guida | - |
| C20 | Massa plancia lato passeggero | - |
| C31 | Massa posteriore destra | - |
| D20 | Giunzione plancia/posteriore | - |
| D35 | Giunzione porta posteriore sinistra | - |
| D36 | Giunzione porta posteriore destra | - |
| H1 | Commutatore di accensione | H47 | Interruttore alzacristallo post. sx su plancia | H47 | Interruttore alzacristallo post. sx su plancia | H48 | Interruttore alzacristallo post. dx su plancia | H48 | Interruttore alzacristallo post. dx su plancia | H53 | Interruttore alzacristallo su porta posteriore sin | H53 | Interruttore alzacristallo su porta posteriore sin | H54 | Interruttore alzacristallo su porta posteriore des | H54 | Interruttore alzacristallo su porta posteriore des | H55 | Interruttore blocco alzacristalli posteriori | J65 | Teleruttore alzacristalli anteriori | - |
| J66 | Teleruttore alzacristalli posteriori | - |
| M82 | Centralina comando alzacristalli posteriori | - |
| N65 | Motorino alzacristallo posteriore sinistro | N66 | Motorino alzacristallo posteriore destro | 2883135Op. 7010M ALZACRISTALLI ELETTRICI PORTE LATERALI POSTERIORI |
Localizzazione componentiComponenti
| Codice componente | Denominazione | Riferimento al complessivo |
| B1 | Centralina di derivazione | B5 | Scatola MAXI FUSE | B17 | Fusibile alzacristalli posteriori | - |
| B26 | Fus. alim. sotto chiave escluso avviam. (INT/A) | - |
| C15 | Massa plancia lato guida | - |
| C20 | Massa plancia lato passeggero | - |
| C31 | Massa posteriore destra | - |
| D20 | Giunzione plancia/posteriore | - |
| D35 | Giunzione porta posteriore sinistra | - |
| D36 | Giunzione porta posteriore destra | - |
| H1 | Commutatore di accensione | H47 | Interruttore alzacristallo post. sx su plancia | H47 | Interruttore alzacristallo post. sx su plancia | H48 | Interruttore alzacristallo post. dx su plancia | H48 | Interruttore alzacristallo post. dx su plancia | H53 | Interruttore alzacristallo su porta posteriore sin | H53 | Interruttore alzacristallo su porta posteriore sin | H54 | Interruttore alzacristallo su porta posteriore des | H54 | Interruttore alzacristallo su porta posteriore des | H55 | Interruttore blocco alzacristalli posteriori | J65 | Teleruttore alzacristalli anteriori | - |
| J66 | Teleruttore alzacristalli posteriori | - |
| M82 | Centralina comando alzacristalli posteriori | - |
| N65 | Motorino alzacristallo posteriore sinistro | N66 | Motorino alzacristallo posteriore destro | 2883135Op. 7010M ALZACRISTALLI ELETTRICI PORTE LATERALI POSTERIORI |
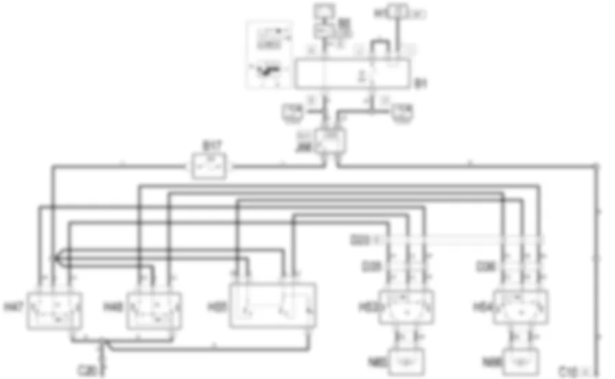
DescrizioneL'azionamento degli alzacristalli elettrici per le porte posteriori avviene sia tramite gli interruttori collocati sulla plancia che tramite quelli posti su ciascuna delle porte posteriori. Il funzionamento degli alzacristalli posteriori e manuale (il vetro sale/scende solo a tasto premuto).Per ragioni di sicurezza, un apposito interruttore di "blocco", posto sulla plancia accanto agli interruttori, permette l'esclusione dell'alimentazione agli interruttori posteriori, in modo da impedire l'azionamento non voluto, per esempio in presenza di bambini, permettendo il controllo esclusivamente dagli interruttori su plancia. Il funzionamento degli alzacristalli posteriori avviene esclusivamente con chiave su MAR.Gli interruttori di comando hanno gli ideogrammi illuminati con chiave su MAR.Il circuito degli alzacristalli posteriori e protetto da uno specifico fusibile, e controllato da uno specifico teleruttore. Entrambi sono posti accanto alla centralina di derivazione.
Descrizione funzionale Il teleruttore alzacristalli posteriori J66 , commanda il funzionamento del circuito medesimo. Il teleruttore alzacristalli viene alimentato dalla linea diretta dalla batteria attraverso maxifuse J/B2 di B5 . La bobina del teleruttore e alimentata "sotto chiave" (INT) dalla linea del fusibile F8 della centralina di derivazione B1 , ed e sempre collegata a massa: il teleruttore risulta cosi sempre eccitato "sotto chiave" (INT). In tal modo si alimentano, con la linea protetta dal fusibile B17 , gli interruttori, H47 (sinistro), H48 (destro) e H55 (blocco alzacristalli posteriori), che sono percio alimentati sotto chiave (INT/A) e sono collegati a massa; in tal modo vengono anche illuminati con chiave su MAR. Quando tali interruttori vengono azionati - se l'interruttore H55 si trova in una posizione di consenso - inviano i segnali di comando (positivo e negativo) agli interruttori sulle porte posteriori H53 ed H54 e da qui ai motorini N65 (sinistro) e N66 (destro): invertendo i segnali a seconda del contatto che e stato chiuso si determina il senso di rotazione del motorino stesso.
Fus. alim. sotto chiave escluso avviam. (INT/A)
B026
B026
B026
Massa plancia lato guida
C015A
C015A
C015B
C015B
C015
Massa plancia lato passeggero
C020
C020
C020
C020
Massa posteriore destra
C031
C031
C031
Giunzione plancia/posteriore
D020A
D020A
D020A
D020A
D020A
D020B
D020B
D020B
D020B
D020B
D020B
D020B
D020B
D020B
D020B
D020B
D020B
D020
D020
D020
D020
D020
D020
D020A
D020B
D020B
D020B
D020B
D020
D020A
D020B
D020B
D020B
D020B
D020
D020A
D020B
D020B
D020B
D020B
D020
D020A
D020B
D020B
D020B
D020B
D020
D020A
D020B
D020B
D020B
D020B
D020
Giunzione porta posteriore sinistra
D035
D035
D035
D035
D035
D035
D035
D035
D035
D035
D035
D035
Giunzione porta posteriore destra
D036
D036
D036
D036
D036
D036
D036
D036
D036
D036
D036
D036
Commutatore di accensione
H001A
H001A
H001A
H001B
H001B
H001B
H001B
H001B
H001B
H001B
H001B
H001B
H001B
H001B
H001B
H001B
H001B
H001B
H001B
Commutatore di accensione
H001A
H001A
H001A
H001B
H001B
H001B
H001B
H001B
H001B
H001B
H001B
H001B
H001B
H001B
H001B
H001B
H001B
H001B
H001B
Commutatore di accensione
H001A
H001A
H001A
H001B
H001B
H001B
H001B
H001B
H001B
H001B
H001B
H001B
H001B
H001B
H001B
H001B
H001B
H001B
H001B
Commutatore di accensione
H001A
H001A
H001A
H001B
H001B
H001B
H001B
H001B
H001B
H001B
H001B
H001B
H001B
H001B
H001B
H001B
H001B
H001B
H001B
Commutatore di accensione
H001A
H001A
H001A
H001B
H001B
H001B
H001B
H001B
H001B
H001B
H001B
H001B
H001B
H001B
H001B
H001B
H001B
H001B
H001B
Commutatore di accensione
H001A
H001A
H001A
H001B
H001B
H001B
H001B
H001B
H001B
H001B
H001B
H001B
H001B
H001B
H001B
H001B
H001B
H001B
H001B
Commutatore di accensione
H001A
H001A
H001A
H001B
H001B
H001B
H001B
H001B
H001B
H001B
H001B
H001B
H001B
H001B
H001B
H001B
H001B
H001B
H001B
Teleruttore alzacristalli posteriori
J066
J066
J066
Centralina comando alzacristalli posteriori
M082A
M082B
Motorino alzacristallo posteriore sinistro
N065
N065
N065
N065
Motorino alzacristallo posteriore sinistro
N065
N065
N065
N065