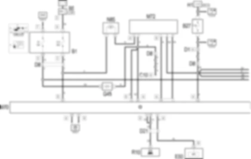
| Codice componente | Denominazione | Riferimento al complessivo | ||||||||||||||||||||||||
| B1 | Centralina di derivazione | B5 | Scatola MAXI FUSE | B27 | Fus. alim. sotto chiave escluso avviam. (INT/A) | - | ||||||||||||||||||||
| B27 | Fus. alim. sotto chiave escluso avviam. (INT/A) | - | ||||||||||||||||||||||||
| C10 | Massa ant. sinistra | - | ||||||||||||||||||||||||
| D1 | Giunzione ant./plancia | - | ||||||||||||||||||||||||
| D8 | Giunzione ant./ condizionatore - riscaldatore | - | ||||||||||||||||||||||||
| D8 | Giunzione ant./ condizionatore - riscaldatore | - | ||||||||||||||||||||||||
| D21 | Giunzione plancia / condizionatore-riscaldatore | - | ||||||||||||||||||||||||
| D30 | Giunzione porta ant. sinistra | - | ||||||||||||||||||||||||
| D31 | Giunzione porta ant. destra | - | ||||||||||||||||||||||||
| E50 | Quadro strumenti | G45 | Luce comandi condizionatore /riscaldatore | G45 | Luce comandi condizionatore /riscaldatore | G45 | Luce comandi condizionatore /riscaldatore | G45 | Luce comandi condizionatore /riscaldatore | H1 | Commutatore di accensione | H80 | Comandi climatizzazione | H81 | Comando elettroventilatore climatizzazione | H81 | Comando elettroventilatore climatizzazione | H81 | Comando elettroventilatore climatizzazione | H82 | Comando temperatura climatizzazione | |||||
J20"> | ||||||||||||||||||||||||||
J20 | Teleruttore inserimento compressore condizionatore | - | ||||||||||||||||||||||||
| J35 | Teleruttore elettroventilatore aria abitacolo | - | ||||||||||||||||||||||||
| J36 | Teleruttore riscaldatore addizionale | - | ||||||||||||||||||||||||
| K87 | Sensore aria trattata | M70 | Centralina climatizzazione | M72 | Variatore velocita' ventilatore | M72 | Variatore velocita' ventilatore | N81 | Attuatore miscelazione aria | N82 | Attuatore presa aria | N85 | Elettroventilatore aria abitacolo | N85 | Elettroventilatore aria abitacolo | O30 | Resistenza regolazione elettrovent. aria abitacolo | O30 | Resistenza regolazione elettrovent. aria abitacolo | O30 | Resistenza regolazione elettrovent. aria abitacolo | O30 | Resistenza regolazione elettrovent. aria abitacolo | R10 | Giunto di diagnosi multiplo | - |
| Codice componente | Denominazione | Riferimento al complessivo | ||||||||||||||||||||||||
| B1 | Centralina di derivazione | B5 | Scatola MAXI FUSE | B27 | Fus. alim. sotto chiave escluso avviam. (INT/A) | - | ||||||||||||||||||||
| B27 | Fus. alim. sotto chiave escluso avviam. (INT/A) | - | ||||||||||||||||||||||||
| C10 | Massa ant. sinistra | - | ||||||||||||||||||||||||
| D1 | Giunzione ant./plancia | - | ||||||||||||||||||||||||
| D8 | Giunzione ant./ condizionatore - riscaldatore | - | ||||||||||||||||||||||||
| D8 | Giunzione ant./ condizionatore - riscaldatore | - | ||||||||||||||||||||||||
| D21 | Giunzione plancia / condizionatore-riscaldatore | - | ||||||||||||||||||||||||
| D30 | Giunzione porta ant. sinistra | - | ||||||||||||||||||||||||
| D31 | Giunzione porta ant. destra | - | ||||||||||||||||||||||||
| E50 | Quadro strumenti | G45 | Luce comandi condizionatore /riscaldatore | G45 | Luce comandi condizionatore /riscaldatore | G45 | Luce comandi condizionatore /riscaldatore | G45 | Luce comandi condizionatore /riscaldatore | H1 | Commutatore di accensione | H80 | Comandi climatizzazione | H81 | Comando elettroventilatore climatizzazione | H81 | Comando elettroventilatore climatizzazione | H81 | Comando elettroventilatore climatizzazione | H82 | Comando temperatura climatizzazione | |||||
J20"> | ||||||||||||||||||||||||||
J20 | Teleruttore inserimento compressore condizionatore | - | ||||||||||||||||||||||||
| J35 | Teleruttore elettroventilatore aria abitacolo | - | ||||||||||||||||||||||||
| J36 | Teleruttore riscaldatore addizionale | - | ||||||||||||||||||||||||
| K87 | Sensore aria trattata | M70 | Centralina climatizzazione | M72 | Variatore velocita' ventilatore | M72 | Variatore velocita' ventilatore | N81 | Attuatore miscelazione aria | N82 | Attuatore presa aria | N85 | Elettroventilatore aria abitacolo | N85 | Elettroventilatore aria abitacolo | O30 | Resistenza regolazione elettrovent. aria abitacolo | O30 | Resistenza regolazione elettrovent. aria abitacolo | O30 | Resistenza regolazione elettrovent. aria abitacolo | O30 | Resistenza regolazione elettrovent. aria abitacolo | R10 | Giunto di diagnosi multiplo | - |
E60215040CE6021







































