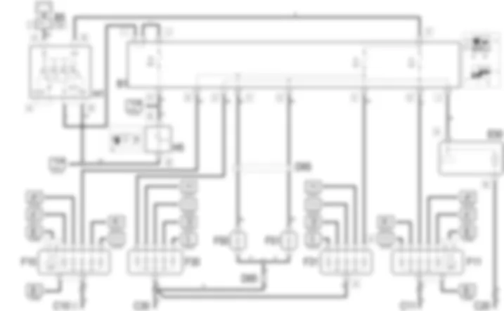
Wiring diagram - SIDE LIGHTS / NO. PLATE LIGHTS - Fiat MULTIPLA 1.6 16v fino a 05/04
COMPONENTS - SIDE LIGHTS / NO. PLATE LIGHTS - Fiat MULTIPLA 1.6 16v fino a 05/04
| Component code | Description | Reference to the assembly |
| B1 | Junction unit | |
| B5 | MAXI FUSE box | |
| C10 | Left front earth | - |
| C11 | Front earth right | - |
| C15 | Facia earth, driver's side | - |
| C30 | Left rear earth | - |
| D85 | Rear/tail-gate junction | - |
| E50 | Engine control and management systems | |
| F10 | Left headlamp | |
| F11 | Right headlamp | |
| F30 | Rear left light cluster | |
| F31 | Rear right light cluster | |
| F50 | Left number plate light | |
| F51 | Right number plate light | |
| H1 | Ignition switch | |
| H5 | Stalk unit |
Component location - SIDE LIGHTS / NO. PLATE LIGHTS - Fiat MULTIPLA 1.6 16v fino a 05/04
COMPONENTS - SIDE LIGHTS / NO. PLATE LIGHTS - Fiat MULTIPLA 1.6 16v fino a 05/04
| Component code | Description | Reference to the assembly |
| B1 | Junction unit | |
| B5 | MAXI FUSE box | |
| C10 | Left front earth | - |
| C11 | Front earth right | - |
| C15 | Facia earth, driver's side | - |
| C30 | Left rear earth | - |
| D85 | Rear/tail-gate junction | - |
| E50 | Engine control and management systems | |
| F10 | Left headlamp | |
| F11 | Right headlamp | |
| F30 | Rear left light cluster | |
| F31 | Rear right light cluster | |
| F50 | Left number plate light | |
| F51 | Right number plate light | |
| H1 | Ignition switch | |
| H5 | Stalk unit |
Description - SIDE LIGHTS / NO. PLATE LIGHTS - Fiat MULTIPLA 1.6 16v fino a 05/04
The side lights come on at the first click of a wheel on the stalk switch, on with key ON.They may also be turned on by removing the key and turning backward - PARK position - while keeping a special button depressed.The number plate light and numerous other interior lights for lighting the passenger compartment, instruments and controls are activated together with the side lights (these are described and explained in the wiring diagrams for the relevant components).The circuit for the side lights is protected by two fuses located in the junction unit: one for the right front and left rear lights, the other for the left front and right rear lights.A warning light on the instrument panel indicates when the side lights are on.
Operational description - SIDE LIGHTS / NO. PLATE LIGHTS - Fiat MULTIPLA 1.6 16v fino a 05/04
The activation signal for the side lights reaches the ignition switch H1 (STAZ) when the steering column switch unit H5 - connector B pin 6 - is switched to the appropriate position: it is an ignition operated supply (INT) for the line protected by fuse F8 of the junction unit B1 . Alternatively - with the key in the PARK position - the supply arrives directly from the battery (maxifuse IGN of B5 ). From switch H1 (POS) the supply is sent to the various side lights via the lines protected by fuses F2 and F3 of the junction unit B1 . The former protects the circuits for the right front lights F11 and left rear F30 and right number plate F51 . The latter protects the circuits for the left front lights F10 , right rear F31 and left number plate F50 . The "side lights on" warning light inside the instrument panel E50 is supplied at the same time - pin 29 of connector A -, whilst pin 1 of connector B of E50 provides the earth. The same signal dims the lighting of the instrument when the lights are switched on.





























