AUTOMOTIVE ELECTRICIANS

Fiat PANDA 1.1 – AIR CONDITIONING – – Automatic Air Conditioning – WIRING DIAGRAM, LOCATION COMPONENTS, OPERATIONAL DESCRIPTION – WIRING DIAGRAM, LOCATION COMPONENTS, OPERATIONAL DESCRIPTION

Fiat PANDA 1.1   – AIR CONDITIONING –  – Automatic Air Conditioning – WIRING DIAGRAM, LOCATION COMPONENTS, OPERATIONAL DESCRIPTION – WIRING DIAGRAM, LOCATION COMPONENTS, OPERATIONAL DESCRIPTION
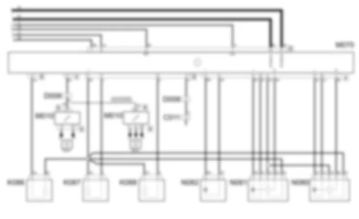
Wiring diagram



COMPONENTS
Component codeNameAssembly reference
B1Engine compartment junction unit5505C
B1engine compartment junction unit5505C
B2Junction unit under dashboard5505C
C11Right front earth-
C16Air conditioning earth-
D1Front dashboard coupling-
D1Front / dashboard coupling-
D1front / dashboard coupling-
D8Front / air conditioning - heater coupling-
D8Front coupling air conditioner with heating-
D8Front coupling / air conditioner - with heating-
D21Dashboard air conditioner heater connection-
D21Dashboard / air conditioner - heater connection-
D97Short circuiting coupling-
G45Air conditioning heater controls light-
G45Air conditioning / heater controls light-
H1Ignition switch5520A
H80Climate control system controls-
K86Frost sensor5040B
K87Lower mixed air temperature sensor5010D
K88Upper mixed air temperature sensor5010D
M1Body computer5505A
M10Engine management control unit-
M10Engine management control unit1056B
M10Engine management control unit1060G
M70Climate control system control unit5040D
N80Air distribution flap actuator5040D
N81Air mixture flap actuator5040D
N82Outside recirculation air intake flap actuator5040D
N82Outside / recirculation air intake flap actuator5040D
N85Passenger compartment ventilation fan5020A
N85Passenger compartment ventilation fan5040C
N86Electronic thermostat-
O30Air fan adjustment resistance-
O30Air fan adjustment resistance5020A
O30Air fan adjustment resistor-
O30Air fan adjustment resistor5020A
Location of components

COMPONENTS
Component codeNameAssembly reference
B1Engine compartment junction unit5505C
B1engine compartment junction unit5505C
B2Junction unit under dashboard5505C
C11Right front earth-
C16Air conditioning earth-
D1Front dashboard coupling-
D1Front / dashboard coupling-
D1front / dashboard coupling-
D8Front / air conditioning - heater coupling-
D8Front coupling air conditioner with heating-
D8Front coupling / air conditioner - with heating-
D21Dashboard air conditioner heater connection-
D21Dashboard / air conditioner - heater connection-
D97Short circuiting coupling-
G45Air conditioning heater controls light-
G45Air conditioning / heater controls light-
H1Ignition switch5520A
H80Climate control system controls-
K86Frost sensor5040B
K87Lower mixed air temperature sensor5010D
K88Upper mixed air temperature sensor5010D
M1Body computer5505A
M10Engine management control unit-
M10Engine management control unit1056B
M10Engine management control unit1060G
M70Climate control system control unit5040D
N80Air distribution flap actuator5040D
N81Air mixture flap actuator5040D
N82Outside recirculation air intake flap actuator5040D
N82Outside / recirculation air intake flap actuator5040D
N85Passenger compartment ventilation fan5020A
N85Passenger compartment ventilation fan5040C
N86Electronic thermostat-
O30Air fan adjustment resistance-
O30Air fan adjustment resistance5020A
O30Air fan adjustment resistor-
O30Air fan adjustment resistor5020A
DescriptionThe control unit manages the automatic climate control system for air distribution and temperature inside the interior compartment, heating/coolign and distributing air into the interior compartment in order to achieve the desired comfort.The climate control system automatically adjusts the following parameters/functions:Air temperature at outlets;Air distribution to the vents;Fan speed (continuous variation);Compressor engagement;Recirculation.The following parameters/functions can be modified manually:Temperature; Distribution pattern over 5 seats;Fan speed;Compressor enabled; Demist/defrost function;Recirculation.Manual selections always take precedence over automatic selections and are stored until the user deliberately cancels the command (by pressing AUTO), allowing the automatic device to take control over the relevant function. The manual setting of a function does not adversely affect the control of other functions set to automatic, in particular, the control of the temperature is always automatic when the system is running. The display of the climate control system functional state is shown through LED and DISPLAY. The 'MAX DEF' function, used for rapid demisting of the windows, is managed by a procedure activated by the relevant button.The operations activated by this procedure are:the DEFROST LED comes on;the LEDS/indications relating to the AUTO and recirculation functions are switched off;the DEFROST distribution LEDS come on, and the compressor engagement, open Recirculation and HEATED REAR WINDOW are enabled;the fully hot (HI) temperature is displayed;display of the fan;activation of the following controls on the climate control system.The duration of the procedure is set to 3 minutes from the time when the coolant temperature exceeds 50 degrees.
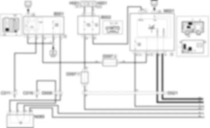
Functional description The climate control unit M070 receives an ignition-dependent supply at pin 2 of connector B along the line protected by the fuse F49, located in the junction unit under the dashboard B002, and a direct battery supply at pin 1 of connector B along the line protected by fuse F39 located in the body computer node M001. The body computer node M001, from pin 9 connector C, manages the operation of relay T08, which supplies the direct battery supply to the electric motor of the fan N085. The relay, excluded during engine starting, is always energised, as it is connected directly to earth C011 from pin 49 connector D of the engine compartment junction unit B001.The vehicle interior air fan N085, is connected to earth C016 at pin 3. The climate control unit M070 manages the various speeds of the fan N085 from pins 7, 8 connector B.The control unit also provides the supply and earth to all the actuators and sensors connected to it.From connector A, the climate control unit M070:from pins 5, 6 provides the supply and earth reference to the actuator for the external air / recirculation flap N082; from pins 9, 10, provides the supply and earth reference to the actuator for the air mixer flap N081; from pins 11, 12 provides the supply and earth reference to the actuator for the air distribution flap N080; at pin 2 provides the enablement to switch on the air mixer flap actuator N081 and the air distribution flap actuator N080; at pins 1, 7 receives signals from the air mixer flap actuator N081 and the air distribution flap actuator N080. from pin 8 sends the compressor engagement signal to the engine control unit M010 ( See E6021 COMPRESSOR ENGAGEMENT ). From connector B, the climate control unit M070:from pin 5 supplies the anti-frost sensor K086, the bottom mixed air temperature sensor K087 and the top mixed air temperature sensor K088; at pin 6 receives the signal supplied by the anti-frost sensor K086; at pin 11 receives the signal supplied by the bottom mixed air temperature sensor K087; at pin 12 receives the signal supplied by the top mixed air temperature sensor K088. From pins 9 and 10 of connector B, the climate control unit communicates via the CAN network with the body computer M001, supplying all the information concerning the status of the air conditioning system See E1050 CAN CONNECTION LINES . Via the CAN line, the climate control unit M070 obtains the external air temperature signal, supplied by the sensor mounted on the door mirror P060 (for further details see See E3032 DOOR MIRROR ADJUSTMENT ).

JUNCTION UNIT



B001A



B001D



B001D



B001D



B001D



B001D



B001D



B001D



vehicle compartment wiring



5505C26


768769

5505C27


<anchor>0</anchor><span>Removing</span><icon><imageid>20</imageid></icon>1Refitting211. Remove the cable pass on the right side of the vehicle from itsseating and open the cover.2. Remove the adhesive tape (2a) present on the wiring (2b) andrelease the windscreen/rear window washer tubes (2c).Release the wiring from the cable pass.Following the same procedure, release thewiring from the cable pass on the left of the vehicle.2046933

5505C34


768769

5505C35


<anchor>0</anchor><span>Removing</span><icon><imageid>20</imageid></icon>1Refitting211. Disconnect the aerial coaxial cable connections.2. Disconnect the electrical connections (2a), (2b), (2c), (2d),(2e) and (2f).2046939

JUNCTION UNIT UNDER DASHBOARD



B002



RIGHT FRONT EARTH



C011



C011



C011



C011



C011



C011



AIR CONDITIONING UNIT EARTH



C016



C016



C016



FRONT/DASHBOARD COUPLING



D001



D001



D001



D001



D001



D001



D001



AIR CONDITIONING-HEATER FRONT COUPLING



D008



D008



D008



D008



D008



D008



D008



D008



DASHBOARD/AIR CONDITIONING-HEATER COUPLING



D021



D021



SHORT CIRCUITING COUPLING



D097A



D097A



D097A



D097A



D097A



D097B



D097B



D097B



D097B



D097B



D097C



D097C



D097C



D097D



D097E



D097E



D097F



D097G



D097G



D097H



AIR CONDITIONING/HEATER CONTROLS LIGHT



G045A



G045A



G045B



G045B



IGNITION SWITCH



H001A



H001A



H001A



H001B



ignition switch



5520A10


767It is not possible toorder a single lock barrel or to order barrels using only the partcode. When ordering barrels, observe the special procedure set outin operation 5580 - Special Accessories. 768769

5520A14



5520A16



AIR CONDITIONING CONTROLS



H080



H080A



H080B



FROST SENSOR



K086



system safety check devices



5040B20


<anchor>0</anchor><span>Removing</span><icon><imageid>20</imageid></icon>1Refitting212752825-4450B02left front wheel r r2752826-4450B04right front wheel r r2753309-7055B90Left front WHEEL ARCH LINER - R.R.2753310-7055B91Right front WHEEL ARCH LINER - R.R.2753303-7055A42front grille - r+r2753353-7210E10R.R. FRONT BUMPER1. Disconnect the electrical connection for the linear sensor.2. Undo the linear sensor and remove it. 2046870

5040B30


<anchor>0</anchor><span>Removing</span><icon><imageid>20</imageid></icon>1Refitting211. Release the air hose from the cold air intake. 2. Undo the fixing bolts (2a) and release the fastening clip (2b).3. Remove the air filter casing complete with hose.2064825

5040B64


768769

LOWER MIXED AIR TEMPERATURE SENSOR



K087



air temperature recording system



5010D12


<anchor>0</anchor><span>Removing</span><icon><imageid>20</imageid></icon>1Refitting21Disconnect the battery negativeterminal.2753078-7005R35door mirror reflector - r r2753079-7005R36door mirror motor - r r1. Disconnect the electrical connections for the mirror. 2. Releaseand remove the temperature sensor.2046817

5010D17


768769

5010D18


<anchor>0</anchor><span>Removing</span><icon><imageid>20</imageid></icon>1Refitting211. Disconnect the electrical connection.2. Release and remove the lower mixed air temperature sensor.2046818

5010D19


<anchor>0</anchor><span>Removing</span><icon><imageid>20</imageid></icon>1Refitting21Disconnect the battery negativeterminal.2753185-7040A28TRIM on gearbox control panel - R.R.1. Disconnect the electrical connection.2. Release and remove the lower mixed air temperature sensor.2046819

5010D30



UPPER MIXED AIR TEMPERATURE SENSOR



K088



BODY COMPUTER



M001A



M001A



M001A



M001B



M001B



M001B



M001C



M001C



M001C



M001C



M001D



M001D



M001E



M001E



M001F



M001F



M001F



M001G



M001H



M001H



M001I



M001L



M001L



M001M



M001M



M001N



M001O



M001O



M001P



multi-function components



5505A13



5505A28


<anchor>0</anchor><span>Removing</span><icon><imageid>20</imageid></icon>1Refitting211. Disengage the fixing lugs (1a) and remove the cover (1b).2046919

5505A32


<anchor>0</anchor><span>Removing</span><icon><imageid>20</imageid></icon>1Refitting21Disconnect the battery negativeterminal.2753188-7040A37fuse box cover - r r1. Undo the retaining bolts.Disconnect the electrical connections.2. Remove the body computer.2046922

5505A90


768769

ENGINE MANAGEMENT ECU



M010A



M010A



M010A



M010B



M010B



M010B



M010B



M010B



M010B



M010B



M010B



M010C



M010C



M010C



multi-point injection system (mpi)



1056B14


<anchor>0</anchor><span>Removing</span><icon><imageid>20</imageid></icon>1Refitting21Disconnect the battery negative terminal.2752486-1048A10air cleaner filtering element - replace1. Release the accelerator cable (1b) working on the throttle valve(1a).2. Disconnect the accelerator cable from the mounting bracket.2046218

1056B50


<anchor>0</anchor><span>Removing</span><icon><imageid>20</imageid></icon>1Refitting21Disconnect the battery negative terminal.2752486-1048A10air cleaner filtering element - replace1. Open the fastening clips and release the wiring.2. Undo the fixing nuts (2a) and remove the wiring mounting bracket(2b).2046220

1056B54


<anchor>0</anchor><span>Removing</span><icon><imageid>20</imageid></icon>1Refitting21Disconnect the battery negative terminal.2752486-1048A10air cleaner filtering element - replace1. Disconnect the electrical connection for the air temperaturesensor.2. Undo the fixing bolt (2a) and remove the integrated air temperaturesensor (2b).2046222

1056B60


<anchor>0</anchor><span>Removing</span><icon><imageid>20</imageid></icon>1Refitting21Disconnect the battery negative terminal.2752486-1048A10air cleaner filtering element - replace1. Release the accelerator cable (1b), working on the throttle valve(1a).2. Disconnect the accelerator cable from the mounting bracket.2046223

1056B69


<anchor>0</anchor><span>Removing</span><icon><imageid>20</imageid></icon>1Refitting212752486-1048A10air cleaner filtering element - replace2752494-1056B60single fuel manifold pipe, with injectors - r + r1. Remove the safety clip.2. Remove the injector.Proceed in the same way for the remaininginjectors.2046227

1056B70



1056B82


<anchor>1</anchor><span>Refitting</span><icon><imageid>21</imageid></icon>0Removing20Fit the engine management control unitin place and tighten the fixing bolts. Connect the electrical connections forthe engine management control unit.Connect the earth lead and tighten thefixing bolt.Connect the battery negative terminal.

pressure pump electric control



1060G10


<anchor>0</anchor><span>Removing</span><icon><imageid>20</imageid></icon>1Refitting21Disconnect the battery negative terminal.1. Disconnect the electrical connection from the air flow meter. 2. Loosen the band and disconnect the the turbocharger air inletsleeve from the rigid pipe, air flow meter side.3. Undo the bolts (3a) and remove the air flow meter (3b).2064495

1060G14


<anchor>0</anchor><span>Removing</span><icon><imageid>20</imageid></icon>1Refitting21Remove the car from the ramps.1. Loosen the band and disconnect the lower radiator coolant outlethose from the radiator, engine oil heat exchanger end.767Collect the engine coolant ina suitable container.2064496

1060G16


<anchor>0</anchor><span>Removing</span><icon><imageid>20</imageid></icon>1Refitting21Disconnect the battery negative terminal.1. Disconnect the electrical connection from the air flow meter. 2. Loosen the band and disconnect the air inlet hose to the turbocharger.2064499

1060G20


<anchor>0</anchor><span>Removing</span><icon><imageid>20</imageid></icon>1Refitting21Disconnect the battery negative terminal.1. Disconnect the electrical connection for the rpm sensor.2. Undo the bolt (2a) and remove the engine rpm sensor (2b). 2064502

1060G22


<anchor>0</anchor><span>Removing</span><icon><imageid>20</imageid></icon>1Refitting21Remove the car from the ramps.Disconnect the battery negative terminal.1. Disconnect the electrical connection from the air flow meter. 2. Loosen the band and disconnect the the turbocharger air inletsleeve from the rigid pipe, air flow meter side.2064504

1060G28


<anchor>0</anchor><span>Removing</span><icon><imageid>20</imageid></icon>1Refitting21Disconnect the battery negative terminal.1. Disconnect the electrical connection from the air flow meter. 2. Loosen the band and disconnect the the turbocharger air inletsleeve from the rigid pipe, air flow meter side.2064507

1060G80


<anchor>0</anchor><span>Removing</span><icon><imageid>20</imageid></icon>1Refitting211. Undo the fixing nuts (1a), disconnect the electrical connections(1b) and remove the engine management control unit (1c).2064511

1060G90


<anchor>0</anchor><span>Removing</span><icon><imageid>20</imageid></icon>1Refitting21Remove the car from the ramps.2752965-5530B10battery - r+r2752966-5530B52Battery DRIP TRAY/SUPPORT - R.R.1. Disconnect the electrical connection from the air flow meter. 2. Loosen the band and disconnect the the turbocharger air inletsleeve from the rigid pipe, air flow meter side.2064512

CLIMATE CONTROL SYSTEM CONTROL UNIT



M070A



M070B



air conditioner controls



5040D14


768769

5040D75


768769

5040D76


<anchor>0</anchor><span>Removing</span><icon><imageid>20</imageid></icon>1Refitting21Disconnect the battery negativeterminal.Disconnect the electrical connection.1. Undo the retaining bolts.2. Remove the air conditioner air distribution flap motor.2046903

5040D77


<anchor>0</anchor><span>Removing</span><icon><imageid>20</imageid></icon>1Refitting21Disconnect the battery negativeterminal.1. Release and remove the bottom right trim.2046905

5040D80



AIR DISTRIBUTION FLAP ACTUATOR



N080



MIXTURE FLAP ACTUATOR



N081



OUTSIDE / RECIRCULATION AIR INTAKE FLAP ACTUATOR



N082



PASSENGER COMPARTMENT AIR FAN



N085



N085



N085



box and components



5020A10


768769

5020A12



5020A24


<anchor>0</anchor><span>Removing</span><icon><imageid>20</imageid></icon>1Refitting211. Undo retaining bolts2. Release the clip.3. Rotate it in a clockwise direction and remove the heater fanmotor.2046820

5020A30


768769

5020A34


<anchor>0</anchor><span>Removing</span><icon><imageid>20</imageid></icon>1Refitting211. Undo retaining bolts2. Release the clip.3. Rotate the heater fan motor in a clockwise direction and removeit.2046836

5020A44


768769

5020A50


768769

5020A54


<anchor>0</anchor><span>Removing</span><icon><imageid>20</imageid></icon>1Refitting211. Remove the sound insulation seal.2046838

5020A74


<anchor>0</anchor><span>Removing</span><icon><imageid>20</imageid></icon>1Refitting211. Partly release the weatherstrip using a suitable tool.2046842

air conditioner box and components



5040C10


768769

5040C12



5040C24


<anchor>0</anchor><span>Removing</span><icon><imageid>20</imageid></icon>1Refitting211. Undo the retaining bolts.2. Remove the air intake and recirculation flap motor.2046875

5040C26


768769

5040C30


768769

5040C34


<anchor>0</anchor><span>Removing</span><icon><imageid>20</imageid></icon>1Refitting211. Undo the retaining bolt.2. Release the clip.3. Rotate in a clockwise direction and remove the air conditionerfan.2046894

5040C50


768769

5040C54


<anchor>0</anchor><span>Removing</span><icon><imageid>20</imageid></icon>1Refitting21Remove the soundproofing trim.1. Undo the retaining bolts.2. Remove the pipe shield.2046895

5040C64


768769

5040C66



5040C74


<anchor>0</anchor><span>Removing</span><icon><imageid>20</imageid></icon>1Refitting211. Using a suitable tool, partially remove the weather strip.2046898

5040C78



5040C86



ELECTRONIC THERMOSTAT



N086



PASSENGER COMPARTMENT AIR FAN ADJUSTMENT RESISTOR



O030



O030


Can't find your car? Check -> DiagnostData.com!