Componenti - LUCI ANABBAGLIANTI - Fiat DOBLO 1.3 JTD 16V da 12/03
| Codice componente | Denominazione | Riferimento al complessivo |
| B001 | CENTRALINA DI DERIVAZIONE | |
| B2 | CENTRALINA DI DERIVAZIONE SOTTO PLANCIA | |
| C10 | MASSA ANTERIORE SINISTRA | |
| C15 | MASSA PLANCIA LATO GUIDA | |
| E50 | QUADRO STRUMENTI | |
| F010 | PROIETTORE SINISTRO | |
| F011 | PROIETTORE DESTRO | |
| H001 | COMMUTATORE DI ACCENSIONE | |
| H5 | DEVIOGUIDA | |
| M001 | BODY COMPUTER |
| Codice componente | Denominazione | Riferimento al complessivo |
| B001 | CENTRALINA DI DERIVAZIONE | |
| B2 | CENTRALINA DI DERIVAZIONE SOTTO PLANCIA | |
| C10 | MASSA ANTERIORE SINISTRA | |
| C15 | MASSA PLANCIA LATO GUIDA | |
| E50 | QUADRO STRUMENTI | |
| F010 | PROIETTORE SINISTRO | |
| F011 | PROIETTORE DESTRO | |
| H001 | COMMUTATORE DI ACCENSIONE | |
| H5 | DEVIOGUIDA | |
| M001 | BODY COMPUTER |
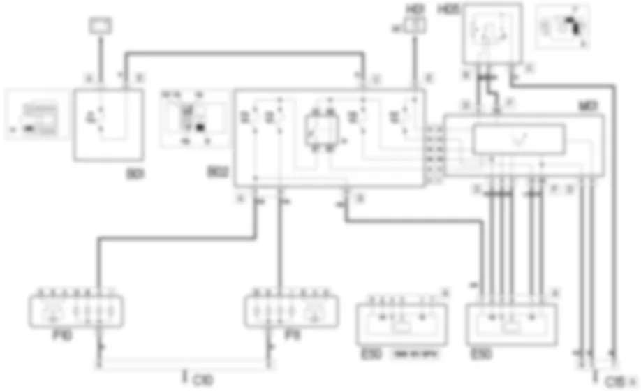
La vettura e dotata di due proiettori specifici per le luci anabbaglianti.Le luci anabbaglianti vengono inserite dal devioguida ruotando l’apposita ghiera nella posizione successiva alle luci di posizione (seconda posizione).Le luci anabbaglianti rimangono accese anche ad abbaglianti inseriti – si spengono pero inserendo le luci fendinebbia.La vettura prevede la funzione “Follow me home”.Essa consiste in una strategia che consente di mantenere accese le luci anabbaglianti anche con chiave di avviamento in posizione di stop per un tempo prestabilito (entro i due minuti dall’arresto vettura).Tale funzione risulta particolarmente utile, ad esempio, a seguito del parcheggio della vettura in garage o in ambianti/spazi poco illuminati.La funzione si attiva agendo sulla leva sinistra del devioguida (lampo luci): ad ogni singolo azionamento l’accensione delle luci anabbaglianti viene prolungata di 30 secondi fino ad un massimo di 5 minuti, quindi si spegne automaticamente.Il circuito e protetto da due fusibili: uno per il proiettore destro, uno per quello sinistro.Il circuito luci anabbaglianti fornice anche il consenso al funzionamento di alcune altre funzioni –ad esempio l’inserimento delle luci retronebbia e del comando orientamento proiettori.
L’attivazione delle luci anabbaglianti viene comandata da un segnale di massa proveniente dal devioguida H05, ruotandone opportunamente la ghiera, ed arriva al body computer M01 al pin 4 connettore D.Con chiave in posizione di stop, al pin 33 connettore F del body computer giunge il segnale dal devioguida utile per l’attivazione della funzione Follow me home.Per accendere le luci anabbaglianti il body computer M01 attiva un teleruttore R1 contenuto nella centralina di derivazione sotto plancia B02 che riceve l’alimentazione diretta, protetta dal fusibile F1, contenuto nella centralina di derivazione vano motore B01, e la invia ai due proiettori destro e sinistro.Ciascuna linea e protetta da un fusibile nella centralina di derivazione sotto plancia B02 : F13 per il proiettore sinistro, F12 per il proiettore destro.Tramite il pin 11 connettore E della centralina di derivazione sotto plancia B02 giunge un altro segnale di alimentazione “sotto chiave” (INT) proveniente dal commutatore d’accensione H01.Il segnale diretto al proiettore sinistro viene anche inviato al quadro strumenti E50 al pin 7 connettore A per le funzioni che richiedono questo segnale di consenso.Inoltre il quadro strumenti E50 comunica con il body computer M01 tramite i pin 8 e 9 connettore A e riceve linee di alimentazione ai pin 1 e 3 connettore A; riceve poi il segnale di massa al pin 2 connettore A.Nella versione Natural Power (1.6 16v Bipower), il segnale diretto al proiettore sinistro viene anche inviato al quadro strumenti E50 al pin 6 connettore A per le funzioni che richiedono questo segnale di consenso.Inoltre il quadro strumenti E50 comunica con il body computer M01 tramite i pin 4 e 3 connettore A e riceve linee di alimentazione ai pin 1 e 2 connettore A; riceve poi il segnale di massa al pin 7 connettore A.Sia il segnale del proiettore sinistro che quello destro vengono utilizzati per l’azionamento del correttore assetto fari.Per ulteriori dettagli,
















































